EasyManua.ls Logo

Daikin DPS025 - Page 61

Daikin DPS025
122 pages
Print Icon
To Next Page IconTo Next Page
To Next Page IconTo Next Page
To Previous Page IconTo Previous Page
To Previous Page IconTo Previous Page
Loading...
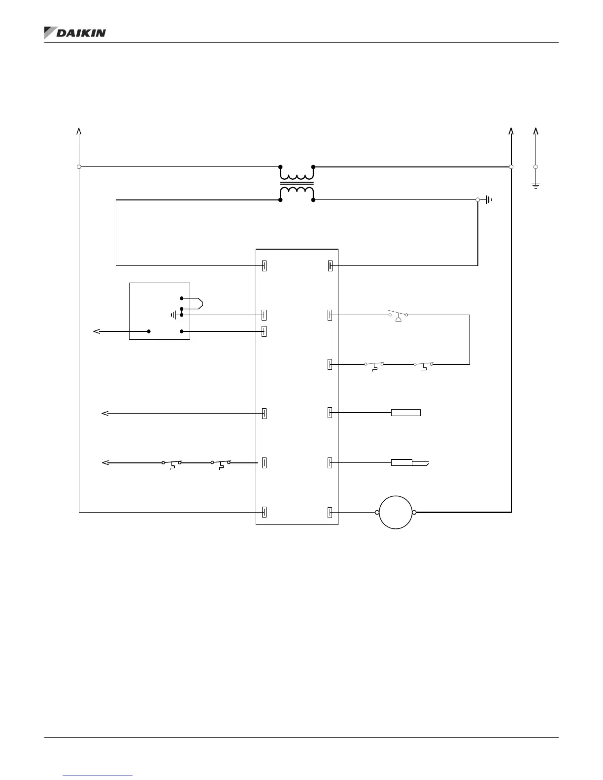
Figure 55: Typical 2 Stage Control Gas Furnace, 300 MBH — DPS 016–028 shown
L1
IND
COMX
MV
PS1
PS2
W
R
FS
HV
C
Hi-Limit
Switch
TS02
Aux Hi-Limit
Switch
TS01
Roll-out
Switch #1
TS03
Air Pressure Switch
PS01
Spark Igniter
SI01
Roll-out
Switch #2
TS04
MTR
24VAC
115VAC
C
HI
LO
remotely
mounted
602A
602B
604A
604B
612A 612B
604A 608A
611B 611C
614B
614C
617B
620D
623A
617A
602C
620A
620B
620C
(Daikin P/N 910172859; includes ignitor and wire)
P1-1/L1 P1-2/L2
TB10
101
T3
Class II
40VA
T01
TB10
102
TB10
GND
611A
2/A
1/A
R/A
Gas Safety Shutoff Valve #1
GSSV01
602D
Inducer Fan Motor
IFM01
Flame Sensor
FS01
600
601
602
603
604
605
606
607
608
609
610
611
612
613
614
615
616
617
618
619
620
621
622
623
624
LED Diagnostic Information
Steady Off: No power or Control hardware fault
Steady On: Power applied, Control OK
1 Flash: Combustion fan motor energized, Pressure switch open
2 Flashes: Combustion fan motor off, Pressure switch closed
3 Flashes: Ignition lockout from too many trials
4 Flashes: Ignition lockout from too many flame losses within single call for heat
5 Flashes: Control hardware fault detected
Ignition Module #1
IM01
UTEK 1016-575
Rebel C 300 MBH Gas Furnace Electrical Schematic
2 Stage Control
P1-3/GND
TB10
GND
HW VR8305Q Vlv (for NG)
HW VR8205Q Vlv (for LPG)
opTIonal gas heaT
www.DaikinApplied.com 61 IM 1125-7 • REBEL ROOFTOPS

Table of Contents

Related product manuals