EasyManua.ls Logo

Daikin EDLA11DAW1 - Piping Diagram; Piping Diagram: Outdoor Unit

Daikin EDLA11DAW1
360 pages
Print Icon
To Next Page IconTo Next Page
To Next Page IconTo Next Page
To Previous Page IconTo Previous Page
To Previous Page IconTo Previous Page
Loading...
6 | Technical data
Service manual
331
EBLA09~16DA + EDLA09~16DA
Daikin Altherma 3 M
ESIE20-06A – 2021.03
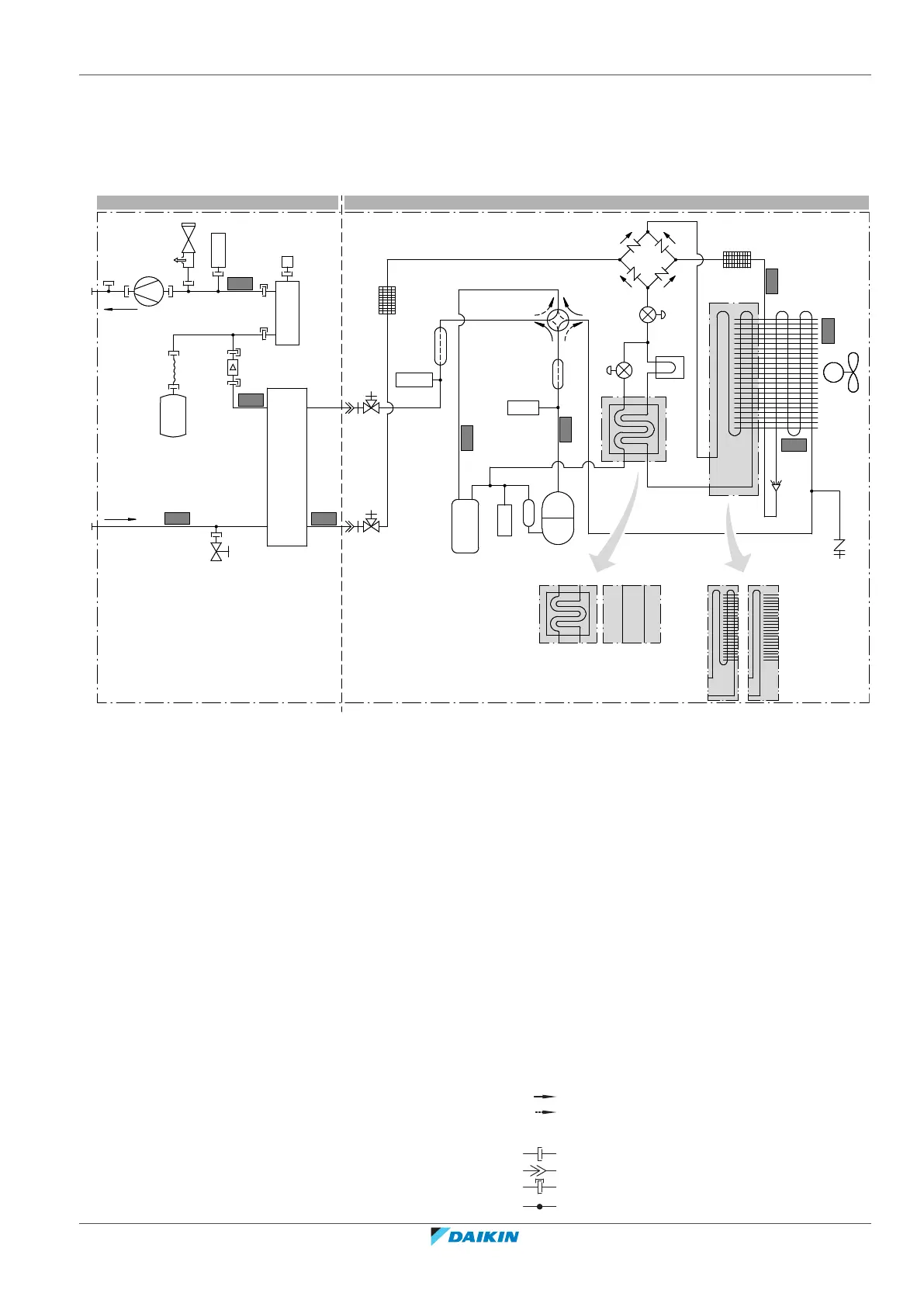
6.3 Piping diagram
6.3.1 Piping diagram: Outdoor unit
EBLA09~16DA3V3 (1N~), EDLA09~16DA3V3 (1N~), EBLA09~16DA3W1 (3N~) and EDLA09~16DA3W1 (3N~)
3D128953A
R4T
R1T
R3T
R2T
R5T
R4T
R3T
R2T
M1C
S1PH
S1PL
B1PW
S1NPH
Y1E
Y3E
Y1S
a
c
d
f
k
j
i
h
g
m
l
t
r
p
s
n
o
q
v
v
e
n
u
b
*
**
1N~
*
1N~
**
3N~
**
3N~
*
A B
R1T
A Hydro module B1PW Space heating water pressure sensor
B Compressor module M1C Compressor
S1PH High pressure switch
a Water IN (screw connection, male, 1") S1PL Low pressure switch
b Water OUT (screw connection, male, 1") S1NPH Pressure sensor
c Drain valve (water circuit) Y1E Electronic expansion valve (main)
d Plate heat exchanger Y3E Electronic expansion valve (injection)
e Flow sensor Y1S Solenoid valve (4-way valve)
f Expansion vessel
g Backup heater Thermistors (hydro module):
h Automatic air purge valve R1T Outlet water heat exchanger
i Safety valve R2T Outlet water backup heater
j Pump R3T Refrigerant liquid side
k Connection for optional flow switch R4T Inlet water
l Liquid stop valve with service port
m Gas stop valve with service port Thermistors (compressor module):
n Filter R1T Outdoor air
o Rectifier R2T Compressor discharge
p Economiser R3T Compressor suction
q Heat sink R4T Air heat exchanger
r Distributor R5T Air heat exchanger, middle
s Heat exchanger
t Service port 5/16" flare Refrigerant flow:
u Accumulator
Heating
v Muffler
Cooling
Connections:
Screw connection
Flare connection
Quick coupling
Brazed connection

Table of Contents

Other manuals for Daikin EDLA11DAW1

Related product manuals