EasyManua.ls Logo

Daikin EDLA16DA3V3 - To Change the Domestic Hot Water Temperature; Using DHW Powerful Operation

Daikin EDLA16DA3V3
68 pages
Print Icon
To Next Page IconTo Next Page
To Next Page IconTo Next Page
To Previous Page IconTo Previous Page
To Previous Page IconTo Previous Page
Loading...
5 | Operation
User reference guide
33
EBLA09~16DA + EDLA09~16DA
Daikin Altherma 3 M
4P620245-1A – 2021.02
t
T
t
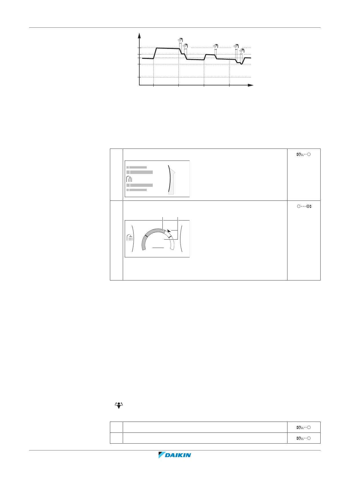
60°C
00:00 07:00
50°C
45°C
15°C
14:00 21:00
35°C
1
2
4
5
3
T
t
Domestic hot water tank temperature
t Time
5.7.5 To change the domestic hot water temperature
In Reheat only mode, you can use the tank temperature setpoint screen to read
out and adjust the domestic hot water temperature.
1 Go to [5]: Tank.
Tank
5
2 Adjust the domestic hot water temperature.
+
50°C
5
a b
Tank
a Actual domestic hot water temperature
b Desired domestic hot water temperature
In other modes, you can only view the setpoint screen but not modify it. Instead,
you can modify the settings for the Comfort setpoint [5.2], Eco setpoint
[5.3] and Reheat setpoint [5.4].
When weather-dependent operation is used for the tank, the tank temperature is
determined automatically by the outdoor temperature. For more information, see
"5.9Weather-dependent curve"[444].
5.7.6 Using DHW powerful operation
About powerful operation
Powerful operation allows the domestic hot water to be heated by the
backup heater or booster heater. Use this mode on days when there is more hot
water usage than usual.
To check if powerful operation is active
If is displayed on the home screen, powerful operation is active.
Activate or deactivate Powerful operation as follows:
1 Go to [5.1]: Tank > Powerful operation
2 Turn powerful operation Off or On.

Table of Contents

Other manuals for Daikin EDLA16DA3V3

Related product manuals