EasyManua.ls Logo

Daikin EKHBRD-ACY1 - Application Examples with 2 or more Different Heat Emitters and 1 Heat Source (EKHBRD Unit)

Daikin EKHBRD-ACY1
48 pages
Print Icon
To Next Page IconTo Next Page
To Next Page IconTo Next Page
To Previous Page IconTo Previous Page
To Previous Page IconTo Previous Page
Loading...
EKHBRD011~016ABV1+Y1 + EKHBRD011~016ACV1+Y1
Indoor unit for air to water heat pump system
4PW60970-1D – 05.2011
Installation manual
4
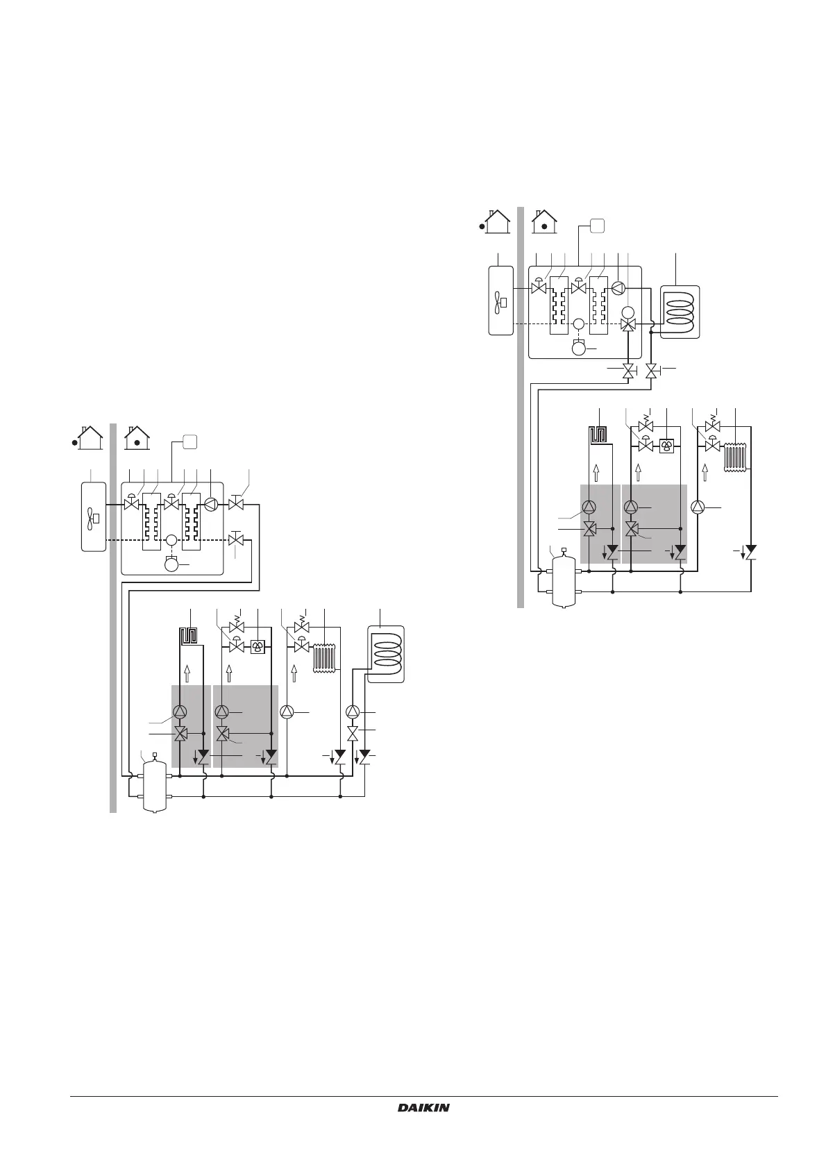
Application examples with 2 or more different heat
emitters and 1 heat source (EKHBRD unit)
Using different heat emitters means using different water set points
for the system.
Such installations must be done using a balancing bottle and each
kind of heat emitter should have a specific pump.
Application 4
Space heating provided through a combination of floor heating
loops, fan coil unit and radiator heating. For floor heating
applications in combination with radiators the water temperature
delivered by the Daikin system is too high. For this reason a
temperature reducing device (field supply) is required to lower
the water temperature (the hot water will be mixed with cold
water to lower the temperature). The control of this field supplied
valve is not done by the heat pump system. The operation and
configuration of the field water circuit and selection of the
balancing bottle, the pumps, etc..., are the responsibility of the
installer. Daikin only offers the possibility to have multiple set
points on request.
Pattern A
The domestic hot water tank is installed in parallel with the
temperature reducing device(s). This allows operating the
unit in space heating and domestic water heating
simultaneously. The balancing of the water distribution is in
this case the responsibility of the installer.
Pattern B
The domestic hot water tank is installed in a separate circuit
(with a 3-way valve) of the temperature reducing device(s).
This configuration does not allow simultaneous domestic hot
water and space heating operation.
Refer to the chapter "Multiple set point control" on page 29
for more information about the configuration of your system.
1 Outdoor unit 14 By-pass valve
(field supply)
2 Indoor unit
3 Electronic expansion
valve
15 FCU: Fan coil unit or
FWXV (optional)
4 Refrigerant heat
exchanger
16 Shut-off valve
(field supply)
5 Water heat exchanger 17 Radiator (field supply)
6 Pump 18 Mixing valve
(field supply)
8 Domestic hot water
tank (optional) 19 Pump (field supply)
9 Compressor 20 Non-return valve
(field supply)
10 Shut-off valve
11 Balancing bottle
(field supply)
21 Valve (field supply)
(refer to "Multiple set
point control" on
page 29 for more
details)
12 FHL: Floor heating
loop (field supply)
3 34 5 10621
17 8
19
21
1919
18
20 20 20
19
18
11
35°C
FHL
45°C
65°C
FCU
1512 14 141613
9
10
TRD1
C1
TRD2
13 Shut off valve (field
supply) or EKVKHPC
2-way valve kit for heat
pump convector
(optional)
C1 Remote controller
TRD1
Temperature reducing
device 1
TRD2
Temperature reducing
device 2
1 Outdoor unit 13 Shut off valve (field
supply) or EKVKHPC
2-way valve kit for heat
pump convector
(optional)
2 Indoor unit
3 Electronic expansion
valve
14 By-pass valve
(field supply)
4 Refrigerant heat
exchanger
15 FCU: Fan coil unit or
FWXV (optional)
5 Water heat exchanger
6 Pump 16 Shut-off valve
(field supply)
7 Motorized 3-way valve
(optional) 17 Radiator (field supply)
8 Domestic hot water
tank (optional)
18 Mixing valve
(field supply)
9 Compressor 19 Pump (field supply)
10 Shut-off valve 20 Non-return valve
(field supply)
11 Balancing bottle
(field supply) C1 Remote controller
12 FHL: Floor heating loop
(field supply)
TRD1
Temperature reducing
device 1
TRD2
Temperature reducing
device 2
3 34 5 6 821
17
1919
18
20 20
19
18
11
M
35°C
FHL
45°C
65°C
FCU
1512 14 141613
9
10 10
7
C1
TRD1 TRD2

Table of Contents

Related product manuals