EasyManua.ls Logo

Daikin Enfinity CCW - Page 22

Daikin Enfinity CCW
48 pages
Print Icon
To Next Page IconTo Next Page
To Next Page IconTo Next Page
To Previous Page IconTo Previous Page
To Previous Page IconTo Previous Page
Loading...
IM 1049-9 22 www.DaikinApplied.com
Controls
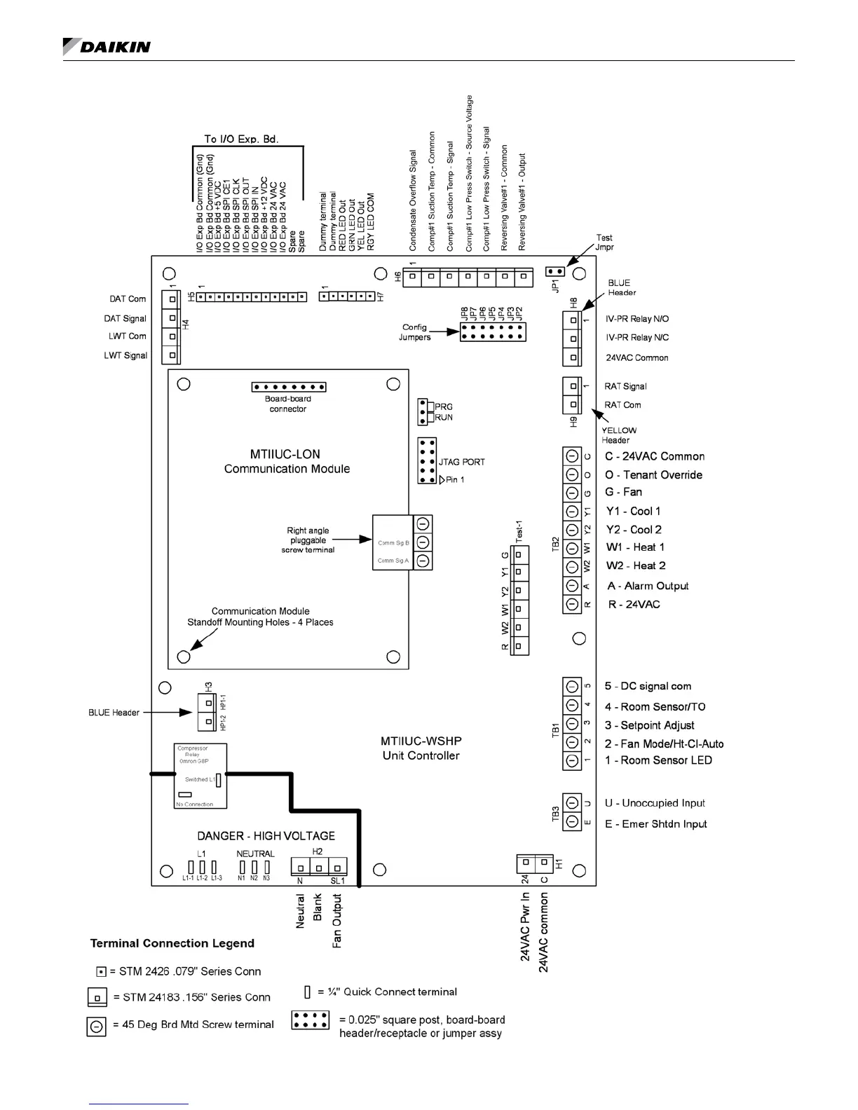
Figure 18: LonWorks® Communication Module Placement on MicroTech™ III Unit Controller

Related product manuals