EasyManua.ls Logo

Daikin FBQ20EAVAK - Preparations before Installation

Daikin FBQ20EAVAK
124 pages
Print Icon
To Next Page IconTo Next Page
To Next Page IconTo Next Page
To Previous Page IconTo Previous Page
To Previous Page IconTo Previous Page
Loading...
English7
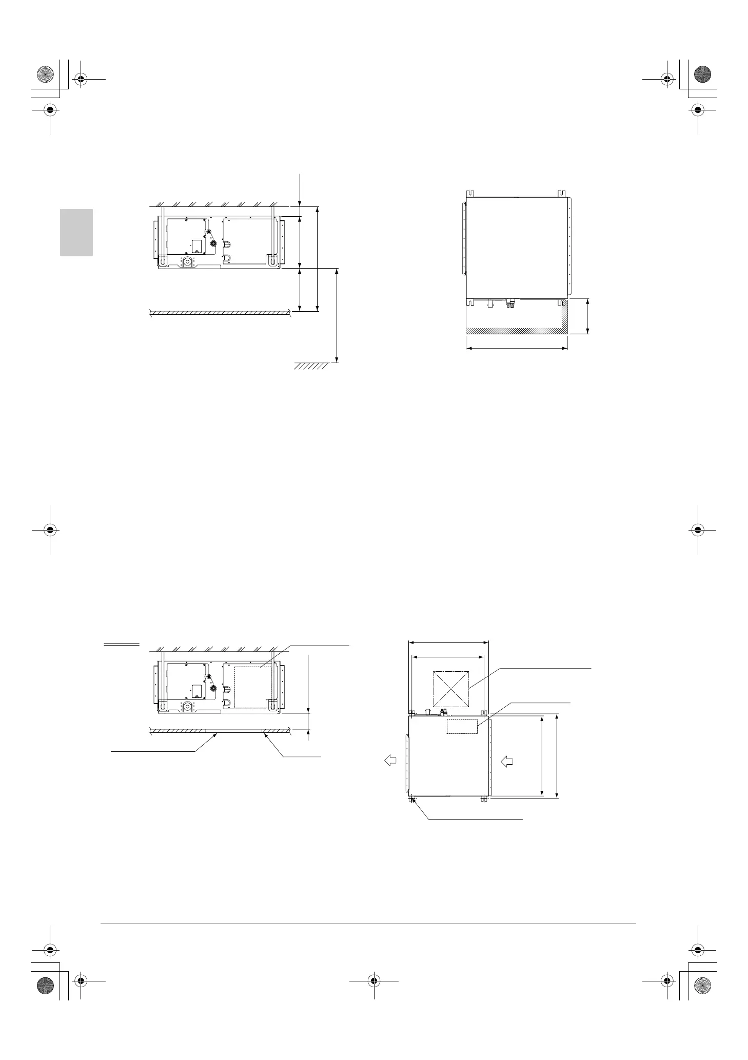
(2) Use suspension bolts for installation. Check if the location for the installation is strong enough to support
the weight of the unit, reinforce it if necessary, and install using suspension bolts.
4. PREPARATIONS BEFORE INSTALLATION
(1) Check the positional relationship between the ceiling opening hole and the hanging bolt of the unit.
For the maintenance, inspection, and other servicing purposes of the control box, prepare one of the
fol
lowing service spaces.
1. Inspection hatch 1 (450 × 450) for the control box and a minimum space of 300 mm for the lower part
of the product. (Refer to Fig. 3)
2. Inspection hatch 1 (450 × 450) for the control box and inspection hatch 2 for the lower pa
rt of the
prod
uct (see axial direction view A-1). (Refer to Fig. 4)
3. Inspection hatch 3 for the lower part of the product and the lower part of the control box (see axial
direction view A-2). (Refer to Fig. 4)
(length: mm)
Ceiling
Floor surface
* The H1 dimension indicates the height of the
product.
* Determine the H2 dimension by maintaining
a downward slope of at least 1/100 as
specified in “7. DRAIN PIPING WORK”.
Min. 20Min. 300
Min. 450
Min. 2500
Min. 700 (service space)
(If no ceiling board is provided.)
*H1=300
*H2=Min. 620
[Required installation place]
Fig. 2
The dimensions indicate the
minimum required space of
installation.
700
631
(Hanging bolt pitch)
Inspection hatch 1
(450×450)
Inspection hatch
Control box
Control box
Ceiling
B
C
(Hanging bolt pitch)
Bottom of unit
Air inlet
Air outlet
Hanging bolt (× 4)
*H3=Min. 300
Fig. 3
Case 1
01_EN_3PN06583-10W.fm Page 6 Thursday, March 24, 2011 9:03 AM

Related product manuals