EasyManua.ls Logo

Daikin FCA71AV16 - Installer Notes and Checks; Selecting Installation Site; Site Selection Criteria

Daikin FCA71AV16
67 pages
Print Icon
To Next Page IconTo Next Page
To Next Page IconTo Next Page
To Previous Page IconTo Previous Page
To Previous Page IconTo Previous Page
Loading...
I
 













2-3. NOTE TO THE INSTALLER



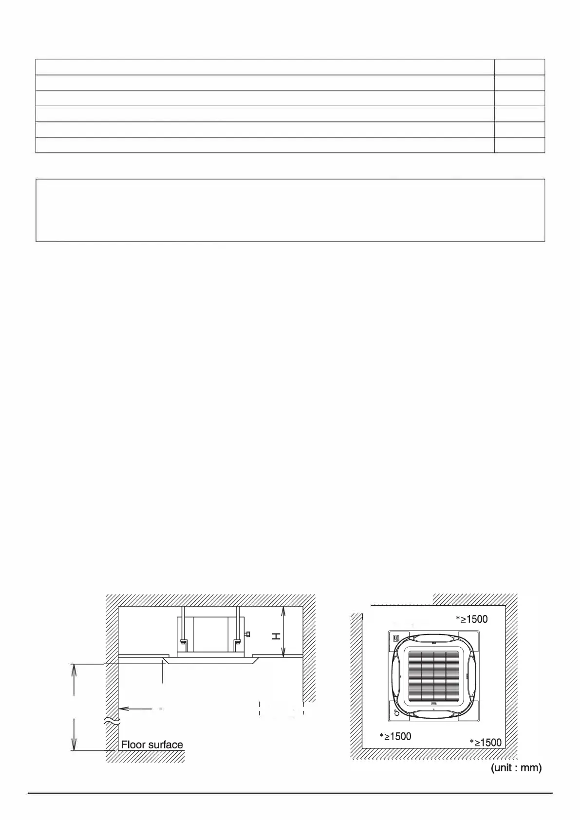
3. SELECTING INSLLATION SITE

 

°






 













1


2 irl









Related product manuals