EasyManua.ls Logo

Daikin FCN50FV1 - Application Information; Operating Range

Daikin FCN50FV1
51 pages
Print Icon
To Next Page IconTo Next Page
To Next Page IconTo Next Page
To Previous Page IconTo Previous Page
To Previous Page IconTo Previous Page
Loading...
5
Application Information
Application Information
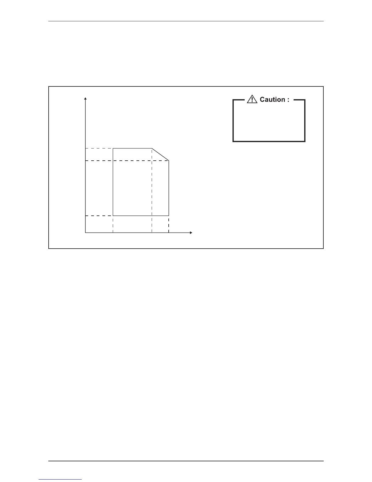
Operating Range
Ensure the operating temperature is in allowance range.
Cooling
The use of your air conditioner
outside the range of working
temperature and humidity can
result in serious failure.
Outdoor
DB (°C)
46
43
19
14 19 23 Indoor WB (°C)

Related product manuals