EasyManua.ls Logo

Daikin FFA60RV1A - Handling for Wireless Remote Controller

Daikin FFA60RV1A
36 pages
Print Icon
To Next Page IconTo Next Page
To Next Page IconTo Next Page
To Previous Page IconTo Previous Page
To Previous Page IconTo Previous Page
Loading...
NOTE
•For the sake of explanation, all indications
are shown on the display in Fig. 1 contrary to
actual running situations.
•Fig. 1-2 shows the remote controller with the
front cover opened.
•If the AIR FILTER CLEANING TIME
INDICATORLAMPlightsup,cleantheairlter
as explained in the operation manual attached
to the indoor unit.
•Aftercleaningandreinstallingtheairlter,
press the FILTER SIGN RESET BUTTON
on the remote controller. The AIR FILTER
CLEANING TIME INDICATOR LAMP on the
receiver will go out.
•TheDEFROSTOPERATIONLAMPwillash
when the power is turned on. This is not a
malfunction.
•Do not place the remote controller where
subject to direct sunlight. The display of the
remote controller will get discolored and may
fail to display information.
[CAUTIONS]
Make sure to turn off the unit and
disconnect the power supply circuit
breaker when taking care of the air
conditioner.
Unless the power supply is disconnected,
it may cause electric shock and injuries.
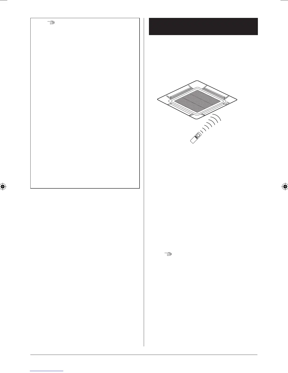
4. HANDLING FOR WIRELESS
REMOTE CONTROLLER
[Precautions in handling remote controller]
Direct the transmitting part of the remote
controller to the receiving part of the air
conditioner.
If something blocks the transmitting and receiving
path of the indoor unit and the remote controller
as curtains, it will not operate.
2 short beeps
from the receiver
indicates that
the transmission
is properly done.
Types of receiving tone
The following receiving tones sound when remote
controller signals are detected by the receiver.
2 SHORT BEEPS:
Signal from the remote controller was received
successfully.
1 LONG BEEP:
(Error tone) The selected function is not
supported on this indoor unit.
3 SHORT BEEPS:
(Error tone) Setting/change cannot be made
using this remote controller as centralised control
is in operation.
NOTE
•After settings are changed or operation is
turned ON/OFF, make sure that the receiving
tone of the indoor unit makes a beeping sound.
The maximum transmitting distance is 7 to 9m.
This depends on the installation condition of the
indoor unit.
Do not drop or get it wet.
It may be damaged.
Never press the button of the remote
controller with a hard, pointed object.
The remote controller may be damaged.
English 4
02_EN_3P477582-1.indd 4 6/15/2017 15:17:39

Related product manuals