EasyManua.ls Logo

Daikin FFRN25CXV1 - Performance Data; Calculation Steps

Daikin FFRN25CXV1
73 pages
Print Icon
To Next Page IconTo Next Page
To Next Page IconTo Next Page
To Previous Page IconTo Previous Page
To Previous Page IconTo Previous Page
Loading...
26
Performance Data
Performance Data
Calculation Steps
Interpolation method can be used to get the total
cooling capacity, TC and sensible cooling capacity,
SC and power input, PI at those temperatures which
are not stated out in the table. Extrapolation method
is not allowed to be used.
Example:
Model: FFRN25CXV1 - RN25CXV1
Indoor Condition: 25°C DB, 17°C WB
Outdoor Condition: 37°C DB
Fan Speed: High
Solution:
Based on the Performance Table,
1. Refer to the Indoor DB column,
25°C is located between 24°C & 27°C
for 16°C WB.
25°C is located between 24°C & 27°C
for 19°C WB.
Thus, Interpolation needs to be applied.
2. Refer to the Indoor WB column,
17°C is located between 16°C & 19°C
for 25°C DB.
Thus, Interpolation needs to be applied.
3. Refer to the Outdoor DB column,
37°C is located between 35°C & 40°C.
Thus, Interpolation needs to be applied.
-
-
-
-
-
-
-
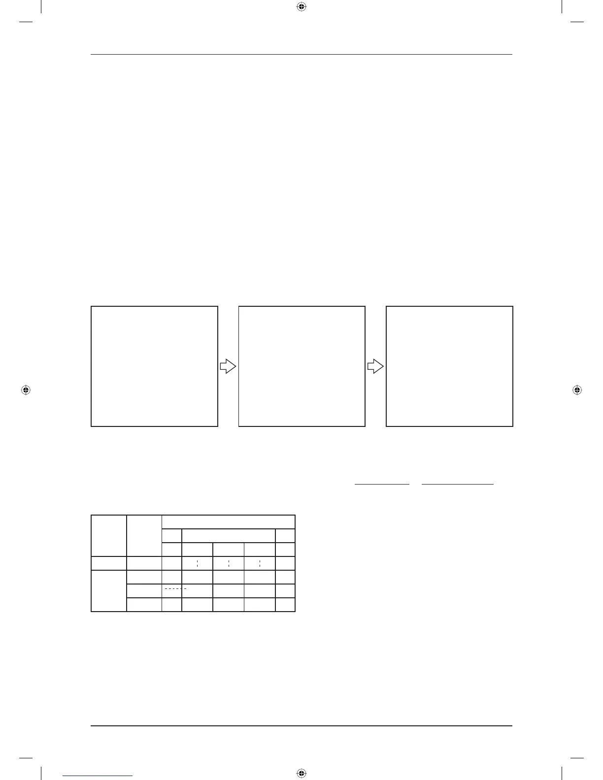
1
st
Step
Interpolation of Indoor WB
Find TC, SC & PI
(a) Indoor: 25°C DB, 16°C WB
Outdoor: 35°C DB
(b) Indoor: 25°C DB, 19°C WB
Outdoor: 35°C DB
(c) Indoor: 25°C DB, 16°C WB
Outdoor: 40°C DB
(d) Indoor: 25°C DB, 19°C WB
Outdoor: 40°C DB
2
nd
Step
Interpolation of Indoor DB
Find TC, SC & PI
(a) Indoor: 25°C DB, 17°C WB
Outdoor: 35°C DB
(b) Indoor: 25°C DB, 17°C WB
Outdoor: 40°C DB
3
rd
Step
Interpolation of Outdoor DB
Find TC, SC & PI
(a) Indoor: 25°C DB, 17°C WB
Outdoor: 37°C DB
Details of Calculation:
1
st
Step:
To obtain the TC, SC & PI for
(a) Indoor Condition: 25°C DB, 16°C WB
Outdoor Condition: 35°C DB
EWB EDB
Outdoor temperature
35°C
TC SC PI
16
24 3.20 3.20 1.27
25
x
1
y
1
z
1
27 3.30 3.30 1.27
By Interpolation Method
25°C – 24°C
=
x
1
– 3.20kW
27°C – 24°C 3.30kW – 3.20kW
x
1
= 3.23kW
Similarly,
y
1
= 3.23kW
z
1
= 1.27kW
DAIKIN_FFRN.indb 26DAIKIN_FFRN.indb 26 12/27/2012 9:28:10 AM12/27/2012 9:28:10 AM

Related product manuals