EasyManua.ls Logo

Daikin FTKB18A - Instalación de la Unidad de Exterior; Unidad Interior; Unidad Exterior

Daikin FTKB18A
64 pages
Print Icon
To Next Page IconTo Next Page
To Next Page IconTo Next Page
To Previous Page IconTo Previous Page
To Previous Page IconTo Previous Page
Loading...
3-6
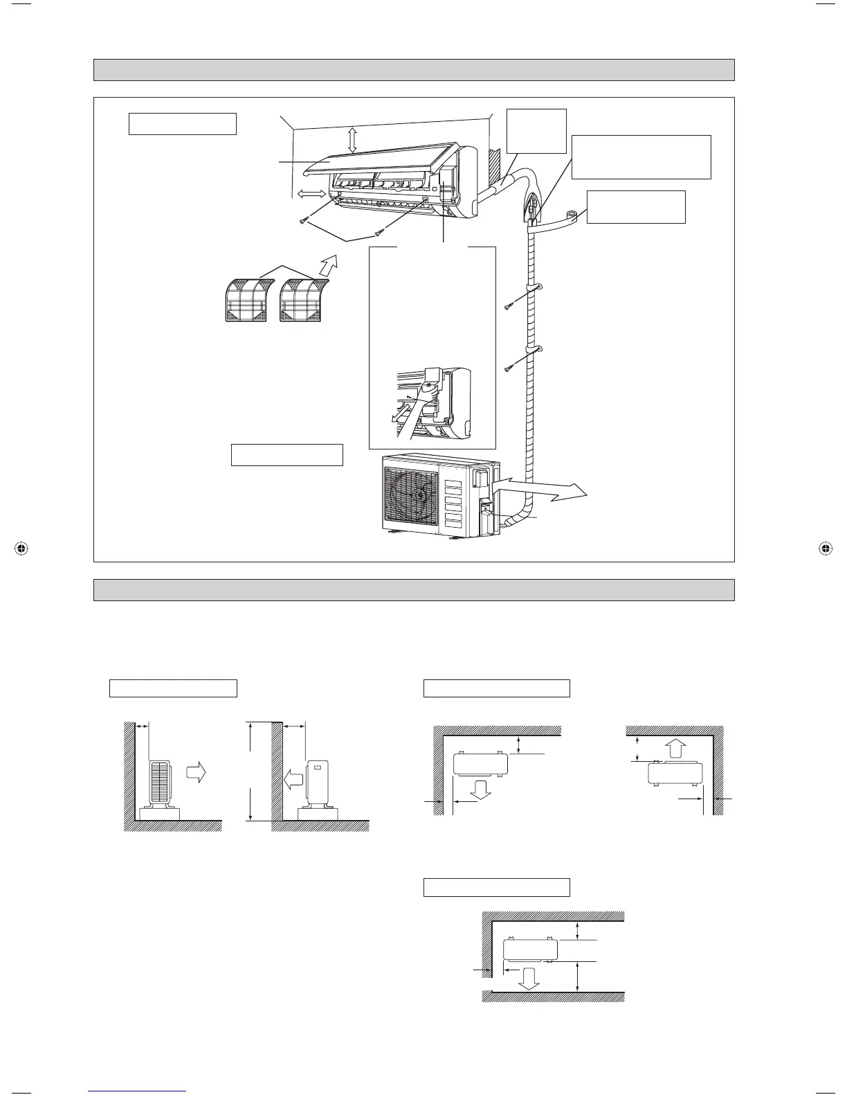
DIAGRAMMA DE LA INSTALACIÓN
INSTALACIÓN DE LA UNIDAD DE EXTERIOR 09/12
Unidad Interior
Filtros del Aire
M4 x 12L
Panel frontal
2-3/16" (55mm) o más desde el techo
Unidad Exterior
1-15/16" (50mm) o más desde
lasparedes (en ambos lados)
Calafatee el
huelgo del
orificio del tubo
con masilla.
Corte el tubo termoaislante a un largo
apropiado y enrollarlo con la cinta,
cuidando de que no quede ningún huelgo
en la línea de corte del tubo aislante.
Enrollar el tubo aislante
con cinta de acabado desde
abajo hacia arriba.
Tapa de servicio
19-11/16" (500mm) desde el muro
Cuando haya una pared u otro obstáculo que obstruya la circulación del aire de entrada o salida de la unidad exterior, siga
las instrucciones de instalación de abajo.
Para cualquiera de los modelo de instalación, la altura de la pared del lado de salida ha de ser de 47-1/4" (1200mm) o
inferior.
Pared a dos lados
Más de 1-15/16 (50)
Pared a un lado
Más de 3-15/16 (100)
Más de 1-15/16 (50)
Más de 1-15/16 (50)
Vista lateral
Más de
3-15/16 (100)
Más de
5-7/8 (150)
Más de 5-15/16 (150)
Más de 11-13/16 (300)
Unidad: Pulgadas (mm)
47-1/4
(1200) ou
menos
Pared a tres lados
Vista superior
Abrir la tapa de servicio
La tapa de servicio es desmontable.
Método de apertura
1) Retire los tornillos de la tapa de
servicio.
2) Extraiga la tapa de servicio tirando
de ella hacia abajo en diagonal, en
el sentido de la flecha.
3) Tire hacia abajo.
¢
¢
Más de 1-15/16 (50)
Vista superior
3 IM-5WMYJ(R)-0617(0)-DAIKIN USA6 63 IM-5WMYJ(R)-0617(0)-DAIKIN USA6 6 10/12/17 10:31:40 AM10/12/17 10:31:40 AM

Related product manuals