EasyManua.ls Logo

Daikin FTKL35UV16W3 - 3 P719813-7 Page 1

Daikin FTKL35UV16W3
35 pages
Print Icon
To Next Page IconTo Next Page
To Next Page IconTo Next Page
To Previous Page IconTo Previous Page
To Previous Page IconTo Previous Page
Loading...
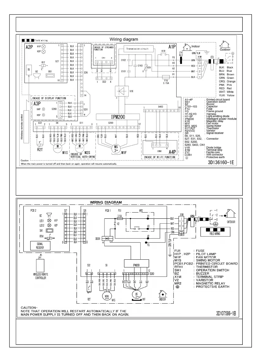
Indoor Unit -Wiring Diagram
Applicable Model :- MTKL50UV16V3, ATKL35UV16W3, FTKL35UV16W3, FTKC48UV16W3,
FTKC48UV16W3F, FTKC35UV16W3, MTKL35UV16W3, GTKL35UV16W3, GTKC35UV16W3,
ATKL50UV16V3, FTKL50UV16V3 & GTKL50UV16V3.
Applicable Model :- GTKC48UV16W3, GTKC48UV16W3A & GTKC48UV16W3F.
13

Related product manuals