EasyManua.ls Logo

Daikin FTXS25D3VMW - Wiring Diagrams; Indoor Units

Daikin FTXS25D3VMW
355 pages
Print Icon
To Next Page IconTo Next Page
To Next Page IconTo Next Page
To Previous Page IconTo Previous Page
To Previous Page IconTo Previous Page
Loading...
SiENBE12-713 Wiring Diagrams
Appendix 331
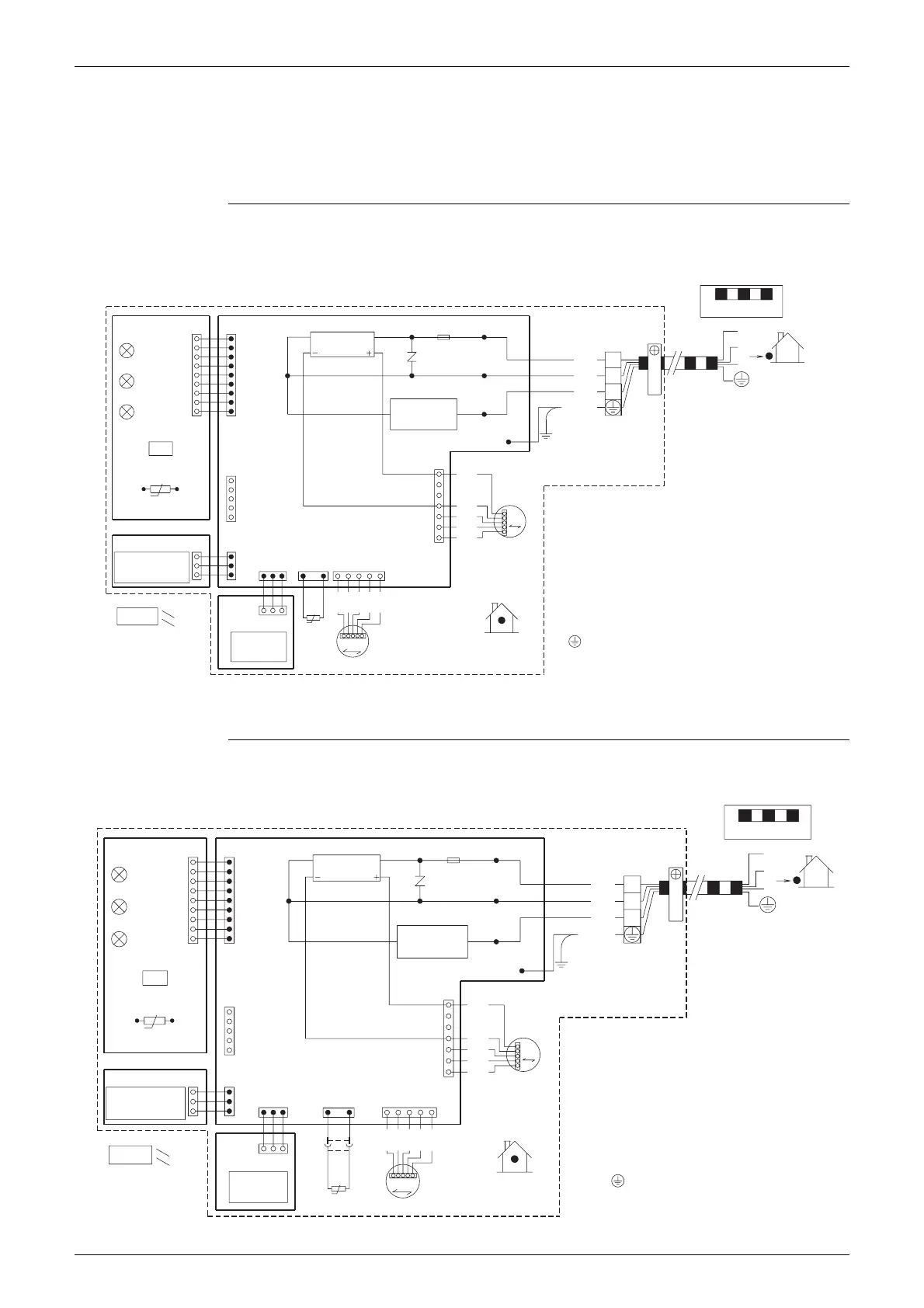
2. Wiring Diagrams
2.1 Indoor Units
2.1.1 Wall Mounted Type
FTKS20D3VMW(L), FTKS25D3VMW(L), FTKS35D3VMW(L)
FTXS20D3VMW(L), FTXS25D3VMW(L), FTXS35D3VMW(L)
FTKS50D2V1W(L), FTXS50D2V1W(L)
: FRAME GROUND
: FUSE
: PILOT LAMP
: FAN MOTOR
: PRINTED CIRCUIT BOARD
R1T, R2T
: CONNECTOR
: OPERATION SWITCH
: TERMINAL STRIP
PCB3
PCB4
LED2
LED3
H2P
H3P
LED1
H1P
S1W
R1T
t°
S27
S36
S26
PCB2
S35
S21
HA
PCB1
S29
S28
R2T
S32
t°
~
RECTIFIER
1
RED
M1S
M
S6
ORG
~
YLW
PNK
5
BLU
V1
7
1
3.15A
S1
F1U
WHT
BRN
RED
BLU
ORG
H2
H3
H1
INDOOR
M1F
FG
M
GRN
: SWING MOTORM1S
F1U
WHT
RED
/
BLK
M1F
H1P~H3P
S1~S38
FG
YLW
X1M
S1W
PCB1~PCB4
X1M
3
2
1
: PROTECTIVE EARTH
: THERMISTOR
FIELD WIRING.
CAUTION
2
3
1
OUTDOOR
NOTE THAT OPERATION WILL
RESTART AUTOMATICALLY IF
THE MAIN POWER SUPPLY IS
TURNED OFF AND THEN BACK
ON AGAIN.
TRANSMISSION
CIRCUIT
SIGNAL
RECEIVER
INTELLIGENT EYE
SENSOR
INFRARED
REMOTE
CONTROL
3D051268A
PCB3
PCB4
LED2
LED3
H2P
H3P
LED1
H1P
S1W
R1T
t°
S27
S36
S26
PCB2
S35
S21
HA
PCB1
S29
S28
X41A
~
RECTIFIER
S32
R2T
t°
~
1
RED
M1S
V1
M
S6
ORG
YLW
PNK
5
7
1
BLU
3.15A
S1
F1U
WHT
BRN
RED
BLU
ORG
H2
H3
H1
INDOOR
M1F
FG
M
M1S
R1T, R2T
GRN
H1P~H3P
S1W
S1~S38, X41A
F1U
M1F
FG
X1M
PCB1~PCB4
WHT
RED
/
BLK
YLW
X1M
3
2
1
: CONNECTOR
: OPERATION SWITCH
: PILOT LAMP
: FUSE
: FAN MOTOR
: PROTECTIVE EARTH
: TERMINAL STRIP
: THERMISTOR
: FRAME GROUND
: SWING MOTOR
: PRINTED CIRCUIT BOARD
FIELD WIRING.
CAUTION
3
2
1
OUTDOOR
NOTE THAT OPERATION WILL
RESTART AUTOMATICALLY IF
THE MAIN POWER SUPPLY IS
TURNED OFF AND THEN BACK
ON AGAIN.
TRANSMISSION
CIRCUIT
SIGNAL
RECEIVER
INFRARED
REMOTE
CONTROL
INTELLIGENT EYE
SENSOR
3D051652

Table of Contents

Other manuals for Daikin FTXS25D3VMW

Related product manuals