EasyManua.ls Logo

Daikin REQ125B7W1B - Page 24

Daikin REQ125B7W1B
34 pages
Print Icon
To Next Page IconTo Next Page
To Next Page IconTo Next Page
To Previous Page IconTo Previous Page
To Previous Page IconTo Previous Page
Loading...
Outdoor Units • R-410A • REQ-B7
Split Sky Air • Outdoor Units
22
37
5
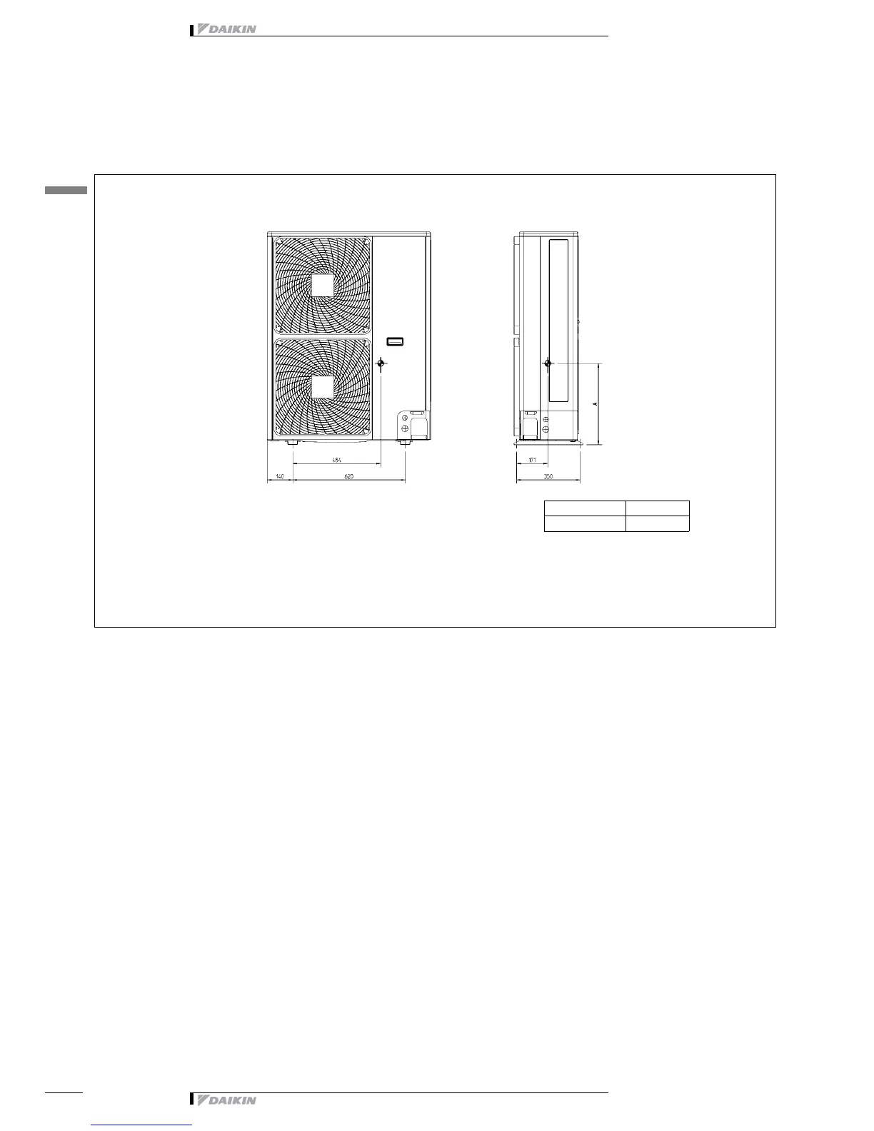
5 Dimensional drawing & centre of gravity
5 - 2 Centre of gravity
3TW26369-5C
REQ125B7
Model A
REQ125B7 390

Other manuals for Daikin REQ125B7W1B

Related product manuals