EasyManua.ls Logo

Daikin REQ71B7V3B - Wiring Diagram

Daikin REQ71B7V3B
34 pages
Print Icon
To Next Page IconTo Next Page
To Next Page IconTo Next Page
To Previous Page IconTo Previous Page
To Previous Page IconTo Previous Page
Loading...
Outdoor Units • R-410A • REQ-B7
Split Sky Air • Outdoor Units
24
37
7
7 Wiring diagram
7 - 1 Wiring diagram
2TW26326-1B
REQ71-100B7V3B
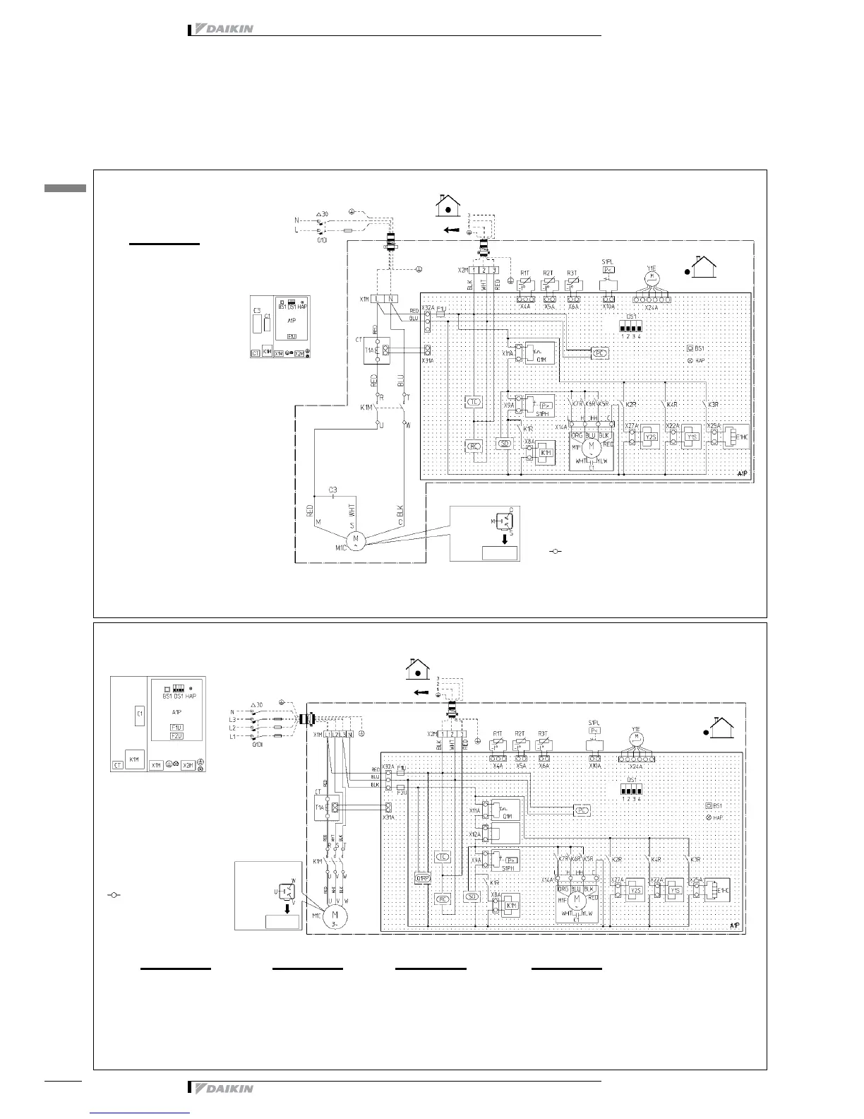
A1P Printed circuit board
BS1 Push button (forced defrost-pump down)
C1R Capacitor (M1F)
C3R Capacitor (M1C)
DS1 DIP switch
E1HC Crankcase heater
F1U Fuse (T6.3/250V)
HAP Light emitting diode (service monitor green)
K1M Magnetic contactor (M1C)
K1R Magnetic relay (K1M)
K2R Magnetic relay (Y2S)
K3R Magnetic relay (E1HC)
K4R Magnetic relay (Y1S)
K5R,K6R,K7R Magnetic relay (M1F)
M1C Motor compressor
M1F Motor fan
PC Power circuit
Q1DI Earth leakage breaker (30mA)
Q1M Thermo switch (M1F)
R1T Thermistor (air)
R2T Thermistor (coil)
R3T Thermistor (discharge pipe)
RC Signal receiver circuit
S1PH Pressure switch (high)
S1LP Pressure switch (low)
SD Safety devices input
T1A Current transformer
TC Signal transmission circuit
X1M,X2M Terminal strip
Y1E Expansion valve (electronic type)
Y1S 4-way valve
Y2S Solenoid valve
CT Current transformer
Indoor
Note:
Confirm the method of setting the DIP switch (DS1) by
service manual when the unit is shipped by factory all
switches are set to be off.
g Field wiring
D : Terminal
F : Connector
b : Protective earth (screw)
L : Live
N : Neutral
: Terminal
Colours
BLK: Black/ BLU: Blue/ WHT: White/
RED: Red/ ORG: Orange/ YLW:Yellow
Switch box
(Outdoor)
Outdoor
ON
OFF
Position of
compressor
terminal
Wire
entrance
Power supply
150Hz
230V
2TW26336-1B
REQ71-100B7W1B
A1P Printed circuit board
BS1 Push button (forced defrost-pump down)
C1 Capacitor (M1F)
DS1 DIP switch
E1HC Crankcase heater
F1U, F2U Fuse (T6.3/250V)
HAP Light emitting diode (service monitor green)
K1M Magnetic contactor (M1C)
K1R Magnetic relay (K1M)
K2R Magnetic relay (Y2S)
K3R Magnetic relay (E1HC)
K4R Magnetic relay (Y1S)
K5R,K6R,K7R Magnetic relay (M1F)
M1C Motor compressor
M1F Motor fan
PC Power circuit
Q1DI Earth leakage breaker (30mA)
Q1M Thermo switch (M1F)
Q1RP Phase reverse circuit
R1T Thermistor (air)
R2T Thermistor (coil)
R3T Thermistor (discharge pipe)
RC Signal receiver circuit
S1HP Pressure switch (high)
S1LP Pressure switch (low)
SD Safety devices input
T1A Current transformer
TC Signal transmission circuit
X1M,X2M Terminal strip
Y1E Expansion valve (electronic type)
Y1S 4-way valve
Y2S Solenoid valve
CT Current transformer
Indoor
Note:
Confirm the method of setting the DIP switch (DS1) by
service manual when the unit is shipped by factory all
switches are set to be off.
g Field wiring
D : Terminal
F : Connector
b : Protective earth (screw)
L : Live
N : Neutral
: Terminal
Colours
BLK: Black/ BLU: Blue/ WHT: White/
RED: Red/ ORG: Orange/ YLW:Yellow
Switch box
(Outdoor)
Outdoor
ON
OFF
Position of
compressor
terminal
Wire
entrance
Power supply
3N50Hz
400V

Other manuals for Daikin REQ71B7V3B

Related product manuals