EasyManua.ls Logo

Daikin REQ71B8W1B - Centre of Gravity

Daikin REQ71B8W1B
36 pages
Print Icon
To Next Page IconTo Next Page
To Next Page IconTo Next Page
To Previous Page IconTo Previous Page
To Previous Page IconTo Previous Page
Loading...
Outdoor Units • R-410A • REQ-B8V3B_REQ-B8W1B
1
7
Split Sky Air • Outdoor Units
25
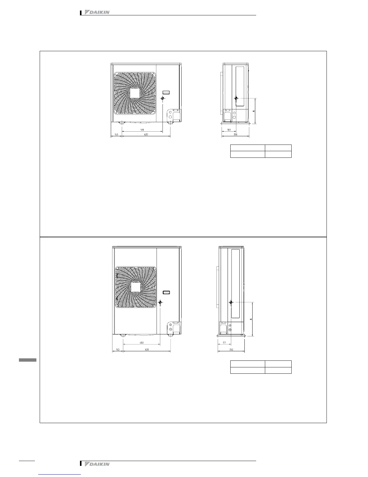
7 Dimensional drawing & centre of gravity
7 - 2 Centre of gravity
3TW26329-5C
REQ71B
Model A
REQ71B 267
3TW26349-5C
REQ100B
Model A
REQ100B 390

Other manuals for Daikin REQ71B8W1B

Related product manuals