EasyManua.ls Logo

Daikin RKD50BVM - Page 38

Daikin RKD50BVM
210 pages
Print Icon
To Next Page IconTo Next Page
To Next Page IconTo Next Page
To Previous Page IconTo Previous Page
To Previous Page IconTo Previous Page
Loading...
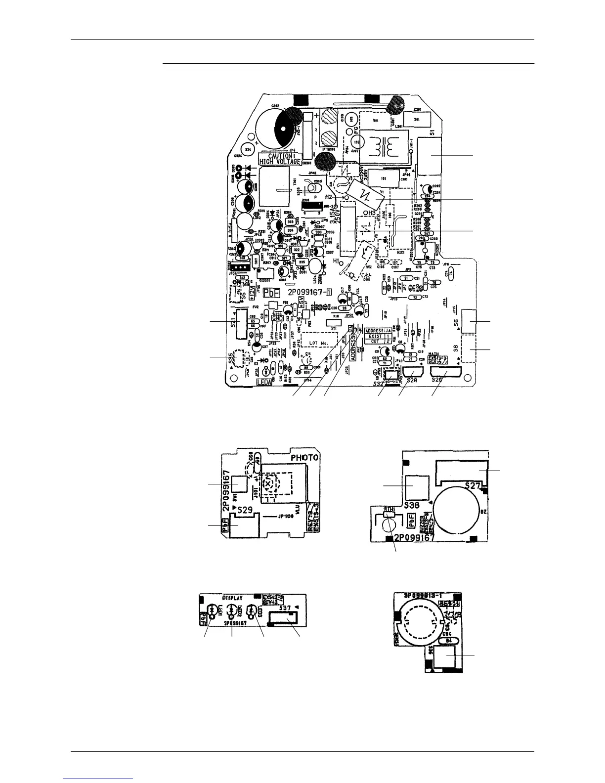
Si04-306 Printed Circuit Board Connector Wiring Diagram
Printed Circuit Board Connector Wiring Diagram 29
PCB Detail PCB(1): Control PCB (indoor unit)
PCB(2): Signal Receiver PCB PCB(3): Buzzer PCB
PCB(4): Display PCB PCB(5): Intelligent Eye sensor PCB
S1
V1
FU1
S6
S8
S26
(R2860)
S28S32JCJBJA
S21
S35
SW1
S29
(R2861)
(R2862)
RTH1
S38
S27
LED1 LED2 LED3 S37
(R2863)
S36
(R2864)

Table of Contents

Other manuals for Daikin RKD50BVM

Related product manuals