EasyManua.ls Logo

Daikin RXG-E2V1B - Dimensional Drawing and Centre of Gravity; Dimensional Drawing

Daikin RXG-E2V1B
16 pages
Print Icon
To Next Page IconTo Next Page
To Next Page IconTo Next Page
To Previous Page IconTo Previous Page
To Previous Page IconTo Previous Page
Loading...
5
Split Sky Air • Outdoor Units
9
Outdoor Units • R-410A • RXG-E2V1B
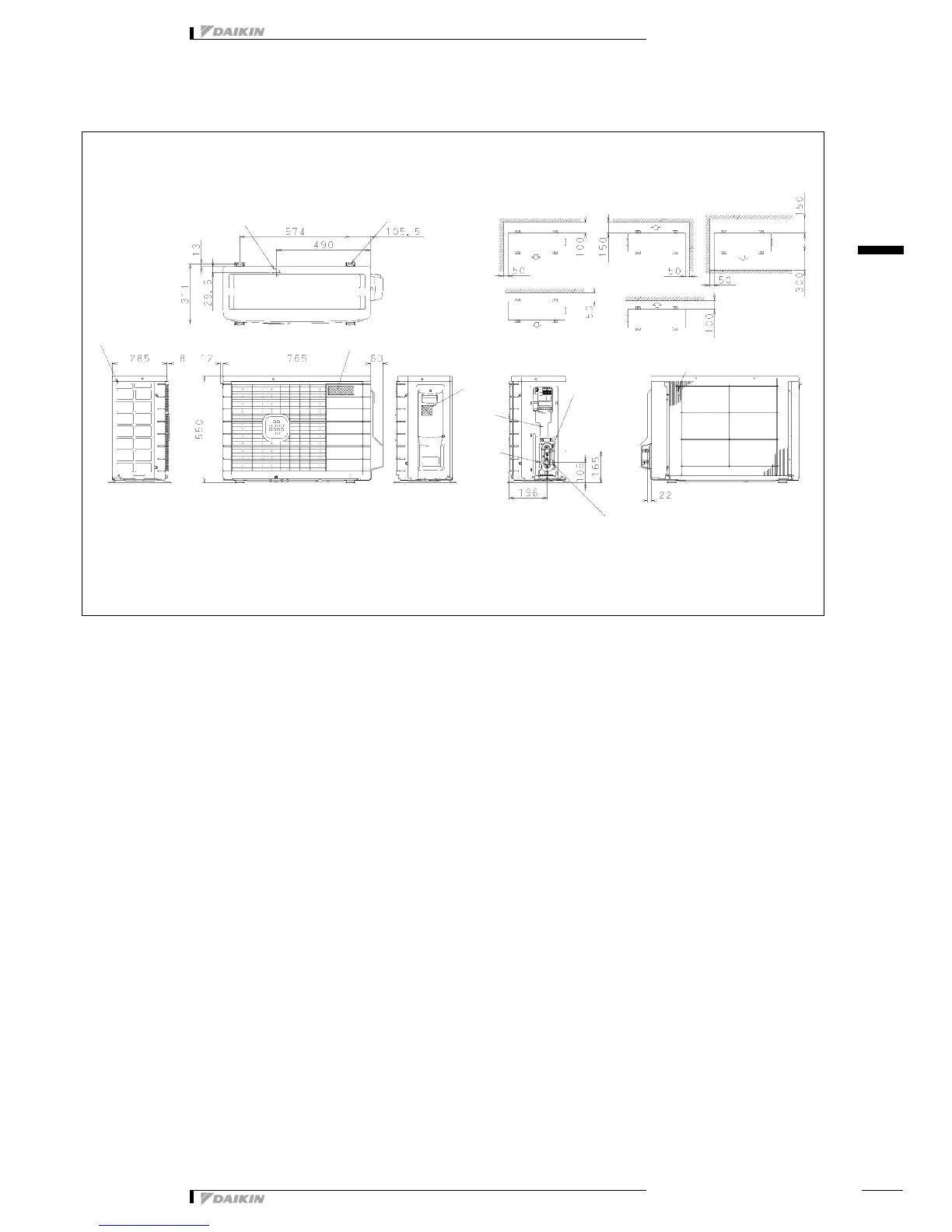
5 Dimensional drawing & centre of gravity
5 - 1 Dimensional drawing
RXG25-35E
unit (mm)
3D041800F
Minimum space for air passage
Wall height on air outlet side = less
than 1200
Drain outlet
(I.D. J 15.9 hose for connection)
4 x holes for anchor bolts (M8 or M10)
Name plate
Terminal strip with earth
terminal
Wiring inlet
Gas stop valve
(J9.5 CuT)
Liquid stop valve
(J6.4 CuT)
Service port
Outdoor air thermistor
Brand name label
In case of removing
stop valve cover
Handle

Related product manuals