EasyManua.ls Logo

Daikin RXQ12PY1 - Bad Examples and Good Examples in Installation

Daikin RXQ12PY1
355 pages
Print Icon
To Next Page IconTo Next Page
To Next Page IconTo Next Page
To Previous Page IconTo Previous Page
To Previous Page IconTo Previous Page
Loading...
SiEN34-705 Appendix
General Information 195
7.14 Bad Examples and Good Examples in Installation
7.14.1 Example 1: Signal Interference due to Use of Multiple Core Cable (All
Model)
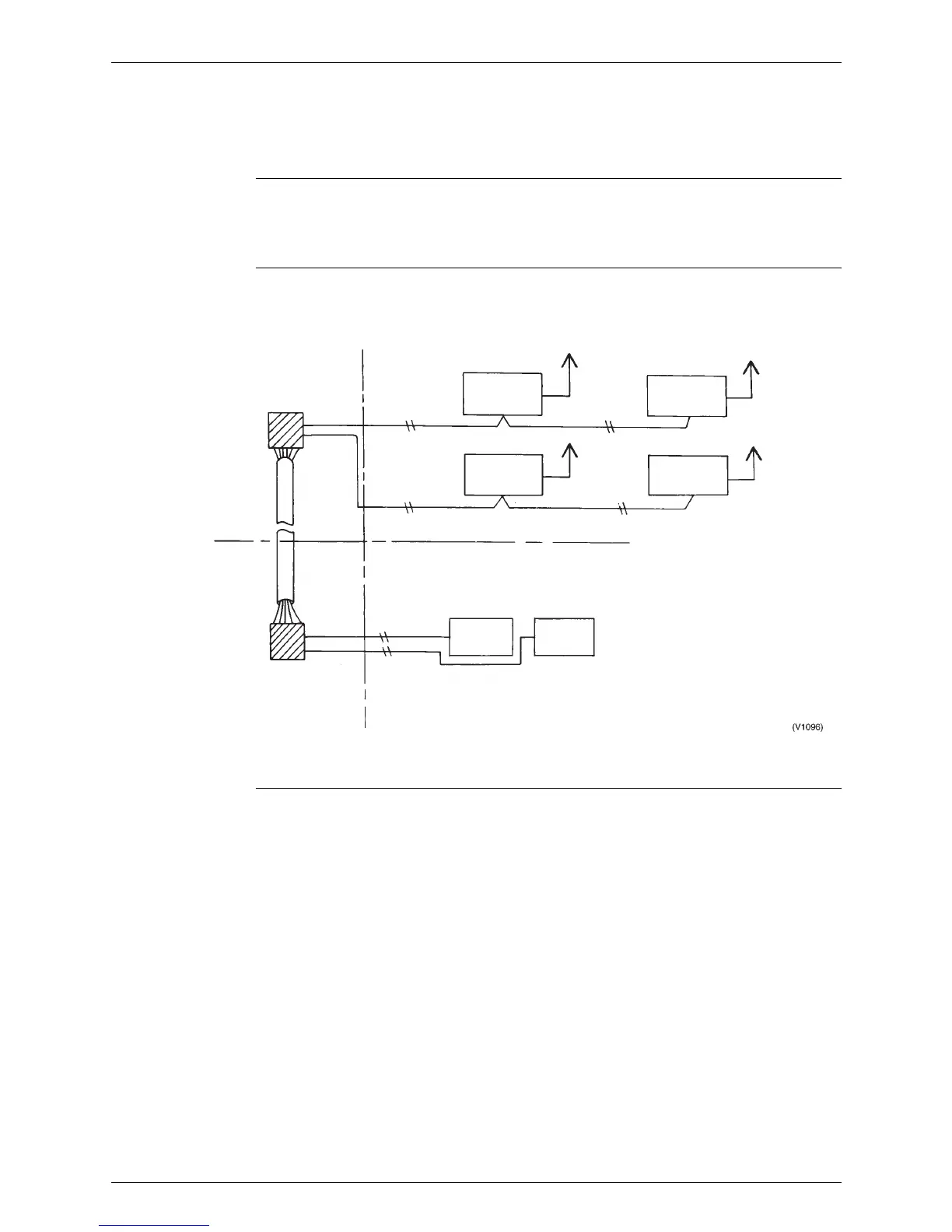
Situation Although for the purposes of group control there are only 2 units per group there are
transmission malfunctions between the indoor units and the remote control and the remote
control’s address display is showing non-existent addresses such as 13 or 15.
Source of
Problem and
Remedial Action
Multiple core cable has been used for at least part of the interconnecting wiring between the
remote control and the indoor units.
This has resulted in signal interference leading to a transmission malfunction.
The multiple core cable was replaced by twin core cable and the fault disappeared.
Main Points ! Although twin core cable had been run from each unit, multiple core cable was used on the
way.
! In schools, etc., because remote controls are often installed in a single first floor control
room, it is easier to use a multi-core cable.
! Signal interference can result in non-existent addresses appearing on the display.
Indoor unit
(0000)
Indoor unit
(0001)
Indoor unit
(0000)
Indoor unit
(0001)
Relay box
Remote
control
Remote
control
Multiple core
cable
To the outside
To the outside
Relay box
To the outside
To the outside
5F
1F

Table of Contents

Related product manuals