EasyManua.ls Logo

Daikin RY35CVMA - Wiring Diagrams; Indoor Units

Daikin RY35CVMA
212 pages
Print Icon
To Next Page IconTo Next Page
To Next Page IconTo Next Page
To Previous Page IconTo Previous Page
To Previous Page IconTo Previous Page
Loading...
Wiring Diagrams Si01-406
190 Appendix
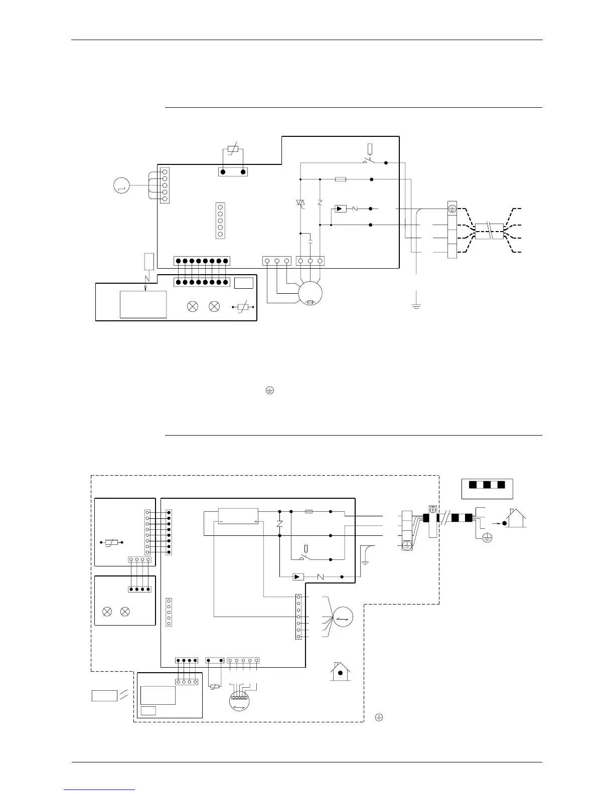
2. Wiring Diagrams
2.1 Indoor Units
FT25CV1A / FT35CV1A
FT50CV1A / FT60CV1A
C70 : RUNNING CAPACITOR
FU : FUSE
H1P
,
H2P : PILOT LAMP
M1F : FAN MOTOR
M1S : SWING MOTOR
MR2 : MAGNETIC RELAY
PCB1
,
PCB2 : PRINTED CIRCUIT BOARD
REMOTE
WIRELESS
CONTROLLER
PCB2
M1S
M
RECEIVER
SIGNAL
S26
S27
S6
LED1
H1P
HA
LED2
H2P
S21
S32
R2T
tº
SW7
R1T
tº
R1T
,
R2T : THERMISTOR
S1~S32 : CONNECTOR
SW7 : OPERATION SWITCH
SA1 : SURGE ARRESTER
V1
,
V2 : VARISTOR
X1M : TERMINAL STRIP
S7
PCB1
: PROTECTIVE EARTH
C70
1~
M1F
tº
M
V1
140ºC
S1
3.15A
FU
SA1
V2 FG
H3
H1
MR2
GRN
YLW
H2
/
GRN
NOTE
ADDRESS JUMPER IS MARKED
"JA"ON PCB1.
/
YLW
BLK
WHT
RED
X1M
2
3
1
TO OUTDOOR
UNIT
3D027406C
CONTROLLER
WIRELESS
REMOTE
PCB4
PCB3
LED1
H1P
R1T
t˚
S37
S38
LED2
H2P
PCB2
S27
S1W
RECEIVER
SIGNAL
S26
S21
S29
S28
PCB1
R2T
S32
t˚
~
RECTIFIER
1
RED
M1S
M
S6
ORG
YLW
~
PNK
5
BLU
V1
7
1
SA1
S1
3.15A
Fu
MR2
WHT
BRN
RED
BLU
ORG
V2
H2
H3
H1
INDOOR
FG
M1F
M
GRN
M1S : SWING MOTOR
SA1 : SURGE ARRESTER
Fu : FUSE
H1~H3 : HARNESS
V1
,
V2 : VARISTOR
M1F : FAN MOTOR
WHT
BLK
/
S1~S38 : CONNECTOR
MR2 : MAGNETIC RELAY
RED
H1P
,
H2P : PILOT LAMP
R1T
,
R2T : THERMISTOR
FG : FRAME GROUND
X1M : TERMINAL STRIP
YLW
S1W : OPERATION SWITCH
PCB1~PCB4 : PRINTED CIRCUIT BOARD
: PROTECTIVE EARTH
X1M
3
2
1
FIELD WIRING.
CAUTION
3
2
1
3D038655C
OUTDOOR
NOTE THAT OPERATION WILL
RESTART AUTOMATICALLY IF
THE MAIN POWER SUPPLY IS
TURNED OFF AND THEN BACK
ON AGAIN.

Table of Contents

Other manuals for Daikin RY35CVMA

Related product manuals