EasyManua.ls Logo

Daikin Super Multi NX FBQ50C7VEB

Daikin Super Multi NX FBQ50C7VEB
501 pages
To Next Page IconTo Next Page
To Next Page IconTo Next Page
To Previous Page IconTo Previous Page
To Previous Page IconTo Previous Page
Loading...
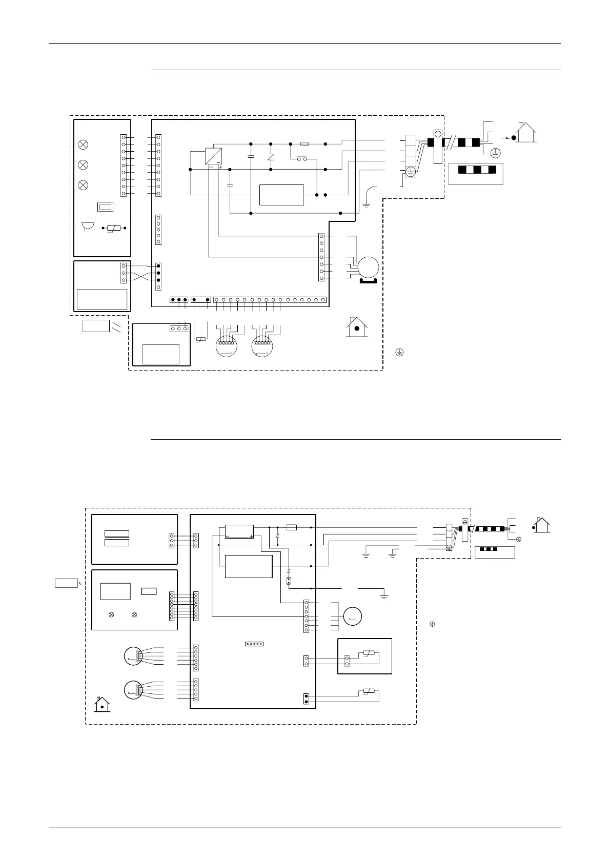
Wiring Diagrams SiBE121021_C
476 Appendix
FTXS60/71GV1B
2.1.2 Floor Standing Type
FVXS25/35/50FV1B
GRN
/
YLW
1
FU1
F1U
X1M
PCB1
PCB3
S46
S49
2
H1
BLK11
BLK
1
LED1
H1P
3
BLK
3.15A
WHT
~
2
BLK
C102 V1
BLK
LED2
H2P
RED
3
H2
MR10
BLK
GRN
BLK
BLK
LED3
H3P
C101
BLK
H3
99 BLK
FG
SW1
S21
S1
HA
7
RED
RTH1
R1T
BZ
4
BLU
S25
BLK
MS
3~
BRN
1
1
PCB4
BLK
ORG
S36
1
WHT
3
S41S47 S32
BLK
4
12 1318 71514316 111012 9
BLK
BLK
BLK
BLK
BLK
PNK
PNK
BLU
BLU
RED
RED
ORG
ORG
YLW
YLW
S48PCB2
1
3
R2T
MSW MSW
M2SM1S
TRANSMISSION
CIRCUIT
INTELLIGENT EYE
SENSOR
WIRELESS
REMOTE
CONTROLLER
SIGNAL
RECEIVER
NOTE THAT OPERATION WILL RESTART
AUTOMATICALLY IF THE MAIN POWER SUPPLY
IS TURNED OFF AND THEN BACK ON AGAIN.
FIELD WIRING.
OUTDOOR
CAUTION
INDOOR
BZ
C101, C102
FG
F1U
H1P~H3P
MR10
M1F
M1S, M2S
PCB1~PCB4
R1T, R2T
S1~S49
SW1
V1
X1M
: BUZZER
: CAPACITOR
: FRAME GROUND
: FUSE
: PILOT LAMP
: MAGNETIC RELAY
: FAN MOTOR
: SWING MOTOR
: PRINTED CIRCUIT BOARD
: THERMISTOR
: CONNECTOR
: OPERATION SWITCH
: VARISTOR
: TERMINAL STRIP
: PROTECTIVE EARTH
M1F
3D064800A
M
S1W
M
M
S2W(4)
3
2
1
3
X1M
2
1
E3
S26
BLU
S42
PCB4
S48
S41
M1S
3.15A
BRN
RED
1
RECTIFIER
RED
LED2
WHT
V2
5
H2
GRN
S4W
ORG
6
M2S
PNK
PCB3
V1
4
YLW
LED1
H3
S21
S1
BLU
SA1
S32
H1
S46
HA
S27
M1F
RED
PCB1
1
F1U
E4
E3
BLU
GRN/YLW
GRN
YLW
E1
1
t°
PCB2
H1P
R1T
7
ORG
PNK
BLK
S47
t°
H2P
RED
S49
R2T
WHT
ORG
~~
NOTE THAT OPERATION WILL
RESTART AUTOMATICALLY IF
THE MAIN POWER SUPPLY IS
TURNED OFF AND THEN BACK
ON AGAIN.
WIRELESS
REMOTE
CONTROLLER
SIGNAL
RECEIVER
indoor
TRANSMISSION
CIRCUIT
FIELD WIRING.
outdoor
CAUTION
F1U
H1P,H2P
M1F
M1S
M2S
PCB1~PCB4
R1T,R2T
S1~S49
S1W
S2W(4)
S4W
X1M
E3
E4
: PROTECTIVE EARTH
: FUSE
: PILOT LAMP
: FAN MOTOR
: SWING MOTOR
: LOWER AIR OUTLET MOTOR
: PRINTED CIRCUIT BOARD
: THERMISTOR
: CONNECTOR
: OPERATION SWITCH
:
UPWARD AIR FLOW LIMIT SWITCH
:
AIR OUTLET SELECTION SWITCH
: TERMINAL STRIP
: EARTH TERMINAL(HEAT EX.)
:
EARTH TERMINAL(SHIELD PLATE)
3D055953A

Table of Contents

Related product manuals