EasyManua.ls Logo

Daikin Super Multi NX FBQ50C7VEB

Daikin Super Multi NX FBQ50C7VEB
501 pages
To Next Page IconTo Next Page
To Next Page IconTo Next Page
To Previous Page IconTo Previous Page
To Previous Page IconTo Previous Page
Loading...
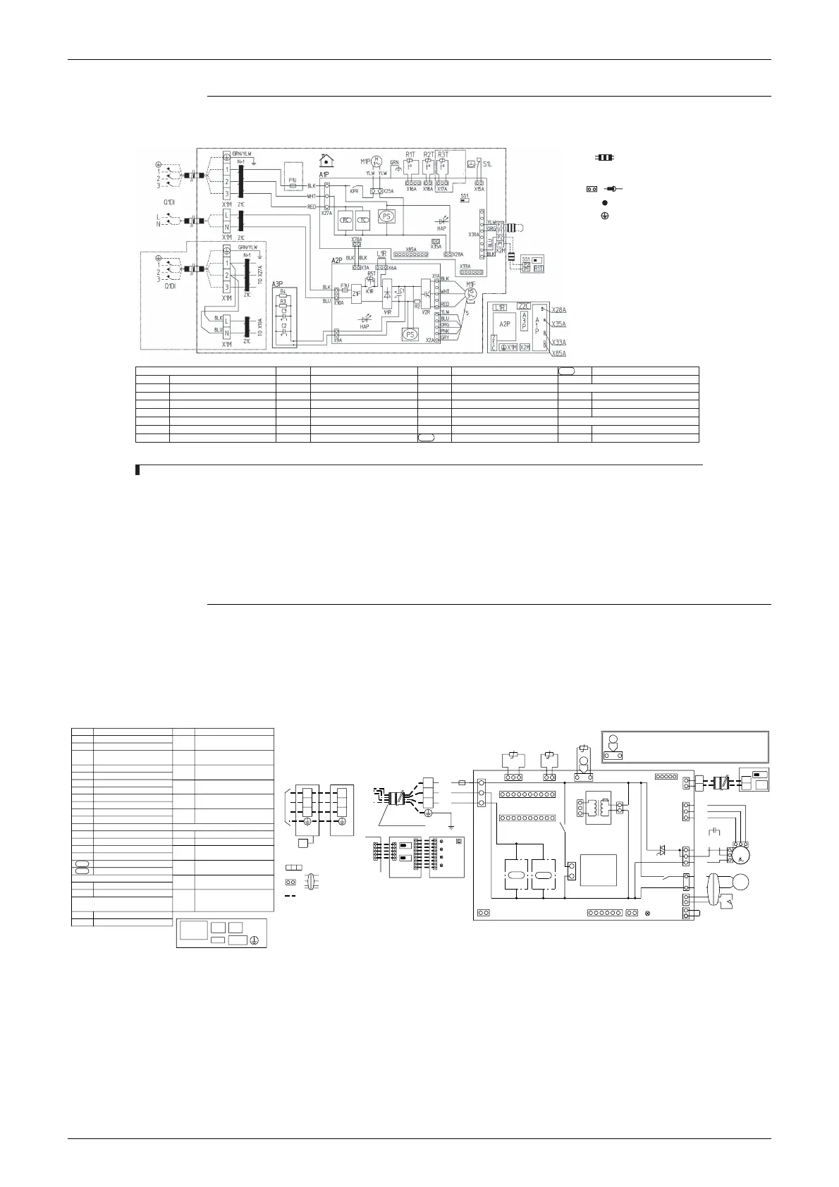
Wiring Diagrams SiBE121021_C
482 Appendix
FBQ60C7VEB
2.1.7 Ceiling Suspended Type
FHQ35/50/60BVV1B
2TW31296-1A
Switch box (indoor)
NORM
.
EMG
Colors
L
N
NOTES
Common
power supply
note 4
only for
60 class
only for
60 class
Transmission
wiring central
remote control
note 2
1 Use copper conductors only.
2 When using the central remote controller, see manual for connection to the unit.
3 The remote control model varies according to the combination system. See technical materials and catalogues, etc. before connecting.
4 Refer to installation manual.
: Field wiring
: Live
: Neutral
: Connector
: Wire clamp
: Protective earth
(screw)
BLK
BLU
BRN
GRY
ORG
PNK
RED
WHT
YLW
GRN
: Black
: Blue
: Brown
: Gray
: Orange
: Pink
: Red
: White
: Yellow
: Green
Wired remote control
(optional accessory)
A1P
A2P
A3P
C1, C2, C3
F1U
F3U
HAP
KPR, K1R
Indoor unit
Printed circuit board
Printed circuit board (fan)
Printed circuit board (capacitor)
Capacitor
Fuse (T, 5A, 250V)
Fuse (T, 6.3A, 250V)
Light emitting diode (service monitor green)
Magnetic relay
L1R
M1F
M1P
PS
Q1DI
R2
R3, R4
R1T
R2T
Reactor
Motor (fan)
Motor (drain pump)
Switching power supply
Earth leak detector
Current sensing device
Resistor (electric discharge)
Thermistor (suction air)
Thermistor (liquid)
R3T
R5T
SS1
S1L
V1R
V2R
Z1C
Z1F
RC
Thermistor (gas)
Thermistor NTC (Current limiting)
Selector switch (emergency)
Float switch
Diode bridge
Power module
Noise filter (ferrite core)
Noise filter
Terminal strip (power supply)
TC
Y1E
X33A
X35A
X38A
R1T
SS1
Terminal strip (control)
Electronic expansion valve
Connector optional accessory
Connector (for wiring)
Connector (adapter)
Connector (for wiring)
Wired remote control
Thermistor (air)
Selector switch (main/sub)
1N~220-240V 50Hz
1N~220V 60Hz
A1P
CONTROL BOX
X1M
C1 T1R
X2M
NOTES)
TO OUTDOOR UNIT
X2M
2
3
1
X2M
2
3
1
NOTE)4
X24A
A1P
RECEIVER/DISPLAY UNIT
H05VV-U4G2.5
A3P
X2A
SS2
SS1
X1A
X2M
3
2
1
A4P
X1A
WHT
BLK
RED
H2P
H3P
H4P
H1P
BS1
F1U
X27A
A1P
X40A
X60A
X61A
R1T
t°
RC
X19A
TC
R2T
t°
X18A
X25A
KPR
X10A
R3T
YLW
YLW
WHT
NOTE)6
t°
X33A
T1R
X17A
t
°
X11A
X35A
HAP
V1TR
X24A
NOTE)4
KAR
X15A
X14A
X20A
X29A
X26A
X5A
BLK
BLK
PRP
BLU
GRY
X1M
BLK
RED
P2
P1
NOTE)6
YLW
C1
WHT
S1Q
MSW
M1F
M1S
~
~
M
SS1
P2
P1
Q1M
R1T
IN CASE OF SIMULTANEOUS
OPERATION SYSTEM
INDOOR UNIT
(MASTER)
INDOOR UNIT
(SLAVE)
TO OUTDOOR
UNIT
REMOTE
CONTROLLER
WIRED REMOTE
CONTROLLER
,
1. : TERMINAL
:
CONNECTOR
2. :
FIELD WIRING
3. IN CASE USING CENTRAL REMOTE CONTROLLER, CONNECT IT TO THE
UNIT IN ACCORDANCE WITH THE ATTACHED INSTALLATION MANUAL.
4. X24A IS CONNECTED WHEN THE WIRELESS REMOTE CONTROLLER
KIT IS BEING USED.
5. REMOTE CONTROLLER MODEL VARIES ACCORDING TO THE COMBINATION
SYSTEM, CONFIRM ENGINEERING MATERIALS AND CATALOGS, ETC. BEFORE CONNECTING.
6. IN CASE INSTALLING THE DRAIN PUMP(M1P), REMOVE THE JUMPER CONNECTOR OF X15A AND EXECUTE THE ADDITIONAL WIRING FOR FLOAT SWITCH AND DRAIN PUMP.
7. SYMBOLS SHOW AS FOLLOWS: RED:RED BLK:BLACK WHT:WHITE YLW:YELLOW PRP:PURPLE GRY:GRAY BLU:BLUE
:CONNECTER DISCRIMINATION COLOUR FOR COMPONENTS.
:CONNECTER COLOUR FOR COMPONENTS.
:CONNECTER COLOUR FOR PRINTED CIRCUIT BOARD.
A1P
C1
F1U
HAP
KAR
KPR
M1F
M1S
Q1M
R1T
R2T
R3T
S1Q
T1R
V1TR
X1M
X2M
RC
TC
R1T
SS1
A3P
A4P
PRINTED CIRCUIT BOARD
CAPACITOR(M1F)
FUSE(F5A 250V)
LIGHT EMITTING DIODE
(SERVICE MONITOR GREEN)
MAGNETIC RELAY(M1S)
MAGNETIC RELAY(M1P)
MOTOR(INDOOR FAN)
MOTOR(SWING FLAP)
THERMO SWITCH(M1F EMBEDDED)
THERMISTOR(AIR)
THERMISTOR(COIL-1)
THERMISTOR(COIL-2)
LIMIT SWITCH(SWING FLAP)
TRANSFORMER(220-240V/22V)
PHASE CONTROL CIRCUIT
TERMINAL BLOCK
TERMINAL BLOCK
SIGNAL RECEIVER CIRCUIT
SIGNAL TRANSMISSION CIRCUIT
WIRED REMOTE CONTROLLER
THERMISTOR(AIR)
SELECTOR SWITCH(MAIN/SUB)
WIRELESS REMOTE CONTROLLER
(RECEIVER/DISPLAY UNIT)
PRINTED CIRCUIT BOARD
PRINTED CIRCUIT BOARD
BS1
H1P
H2P
H3P
H4P
SS1
SS2
X15A
X25A
X33A
X35A
X40A
X60A
X61A
PUSH BUTTON(ON/OFF)
LIGHT EMITTING DIODE (ON-
RED)
LIGHT EMITTING DIODE
(TIMER-GREEN)
LIGHT EMITTING DIODE
(FILTER SIGN-RED)
LIGHT EMITTING DIODE
(DEFROST-ORANGE)
SELECTOR SWITCH
(MAIN/SUB)
SELECTOR SWITCH
(WIRELESS ADDRESS SET)
CONNECTOR FOR OPTIONAL PARTS
CONNECTOR(FLOAT SWITCH)
CONNECTOR(DRAIN PUMP)
CONNECTOR
(ADAPTOR FOR WIRING)
CONNECTOR
(GROUP CONTROL ADAPTOR)
CONNECTOR
(ON/OFF INPUT FROM OUTSIDE)
CONNECTOR
(INTERFACE ADAPTOR
FOR SKY AIR SERIES)
3D037842D

Table of Contents

Related product manuals