EasyManua.ls Logo

Daikin Super Multi NX FCQ50C8VEB

Daikin Super Multi NX FCQ50C8VEB
501 pages
To Next Page IconTo Next Page
To Next Page IconTo Next Page
To Previous Page IconTo Previous Page
To Previous Page IconTo Previous Page
Loading...
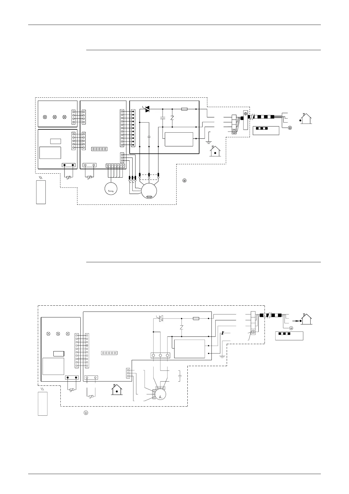
SiBE121021_C Wiring Diagrams
Appendix 477
2.1.3 Floor / Ceiling Suspended Dual Type
FLK(X)S25/35/50/60BAVMB
2.1.4 Duct Connected Type
FDK(X)S25/35EAVMB, FDK(X)S50/60CVMB
LED
H1P
PCB3
LED
H2P
PCB4
S1W
LED
H3P
R1T
S31
t°
S27
S25
S24
S26
S32
R2T
t°
PCB1
S21
HA
M
S6
M1S
S37
S7
X21A
S36
H4
100
1~
M
t°
H5
C70
°C
M1F
H6
X11A
PCB2
3.15A
Fu
H2
H3
H1
GRN
WHT
RED
BLK
/
YLW
X1M
2
3
1
CAUTION
2
3
1
WIRELESS
REMOTE
CONTROLLER
NOTE THAT OPERATION WILL
RESTART AUTOMATICALLY IF
THE MAIN POWER SUPPLY IS
TURNED OFF AND THEN BACK
ON AGAIN.
SIGNAL
RECEIVER
TRANSMISSION
CIRCUIT
FIELD WIRING.
outdoor
indoor
C70
FU
H1P~H3P
M1F
M1S
: PROTECTIVE EARTH
: RUNNING CAPACITOR
: FUSE
: PILOT LAMP
: FAN MOTOR
: SWING MOTOR
PCB1~PCB4
R1T~R2T
S6~S37, X11A, X21A
S1W
X1M
: PRINTED CIRCUIT BOARD
: THERMISTOR
: CONNECTOR
: OPERATION SWITCH(SW7)
: TERMINAL STRIP
3D033909F
PCB2
LED
H1P
LED
H2P
S1W
LED
H3P
2
RTH1
R1T
t°
10
1
S1
1
BRN
S26
2
PCB1
S32
R2T
t°
1
10
BRN
S21
1
(
3
1
S7
BLU
GRY
PPL
S1
)
RED
6
V1TR
1
M1F
~
M
3
BLK
Q1M
130°C
1
WHT
YLW
C1
3.15A
F1U
GND
H2
H3
H1
Z1C
N=2
GRN
GRN
WHT
/
/
BLK
RED
YLW
YLW
X1M
2
3
1
CAUTION
2
3
1
WIRELESS
REMOTE
CONTROLLER
NOTE THAT OPERATION WILL
RESTART AUTOMATICALLY IF
THE MAIN POWER SUPPLY IS
TURNED OFF AND THEN BACK
ON AGAIN.
TERMINAL FOR
CENTRALIZED CONTROL
SIGNAL
RECEIVER
C1
F1U
:
:
:
PROTECTIVE EARTH
CAPACITOR
(
M1F
)
FUSE
H1P ~ H3P
M1F
PCB1 ~ PCB2
Q1M
R1T ~ R2T
S1 ~ S32, RTH1
S1W
V1TR
X1M
Z1C
: PILOT LAMP
: FAN MOTOR
: PRINTED CIRCUIT BOARD
: THERMAL PROTECTOR
(
M1F EMBEDDED
)
: THERMISTOR
: CONNECTOR
: OPERATION SWITCH
: PHASE CONTROL CIRCUIT
: TERMINAL BLOCK
: NOISE FILTER
(
FERRITE CORE
)
FIELD WIRING.
outdoor
TRANSMISSION
CIRCUIT
indoor
3D045012L

Table of Contents

Related product manuals