EasyManua.ls Logo

Daikin Super Multi NX FCQ60C8VEB

Daikin Super Multi NX FCQ60C8VEB
501 pages
To Next Page IconTo Next Page
To Next Page IconTo Next Page
To Previous Page IconTo Previous Page
To Previous Page IconTo Previous Page
Loading...
Outdoor Unit - 80/90 Class SiBE121021_C
428 Removal Procedure
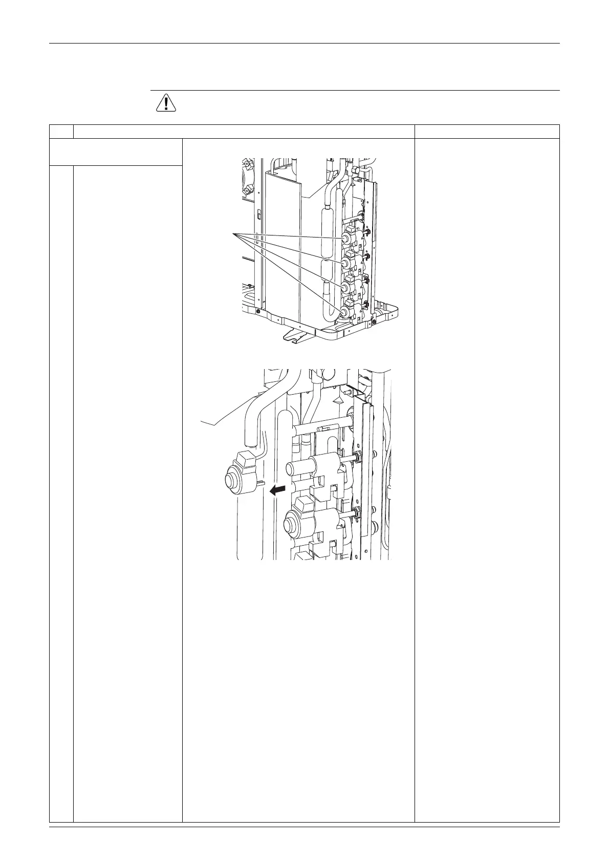
2.5 Removal of Coils / Thermistors
Procedure Warning Be sure to wait for 10 minutes or more after turning off all power
supplies before disassembling work.
Step
Procedure Points
1. Remove the electronic
expansion valve coils.
1
Pull out the electronic
expansion valve coils.
Electronic
expansion
valve coil
(R10415)
(R6446)

Table of Contents

Related product manuals