EasyManua.ls Logo

Daikin UDH - Page 18

Daikin UDH
24 pages
Print Icon
To Next Page IconTo Next Page
To Next Page IconTo Next Page
To Previous Page IconTo Previous Page
To Previous Page IconTo Previous Page
Loading...
IM 907 / Page 18 of 24
7.77
7.77
7.77
7.77
8.2
8.2
8.2
8.2
8.2
8.2
UDX-42
UDX-59
UDX-78
UDX-95
UDX-139
UDX-161
UDX-193
UDX-212
UDX-247
UDX-279
UDX-333
UDX-385
UDX-510
UDX-610
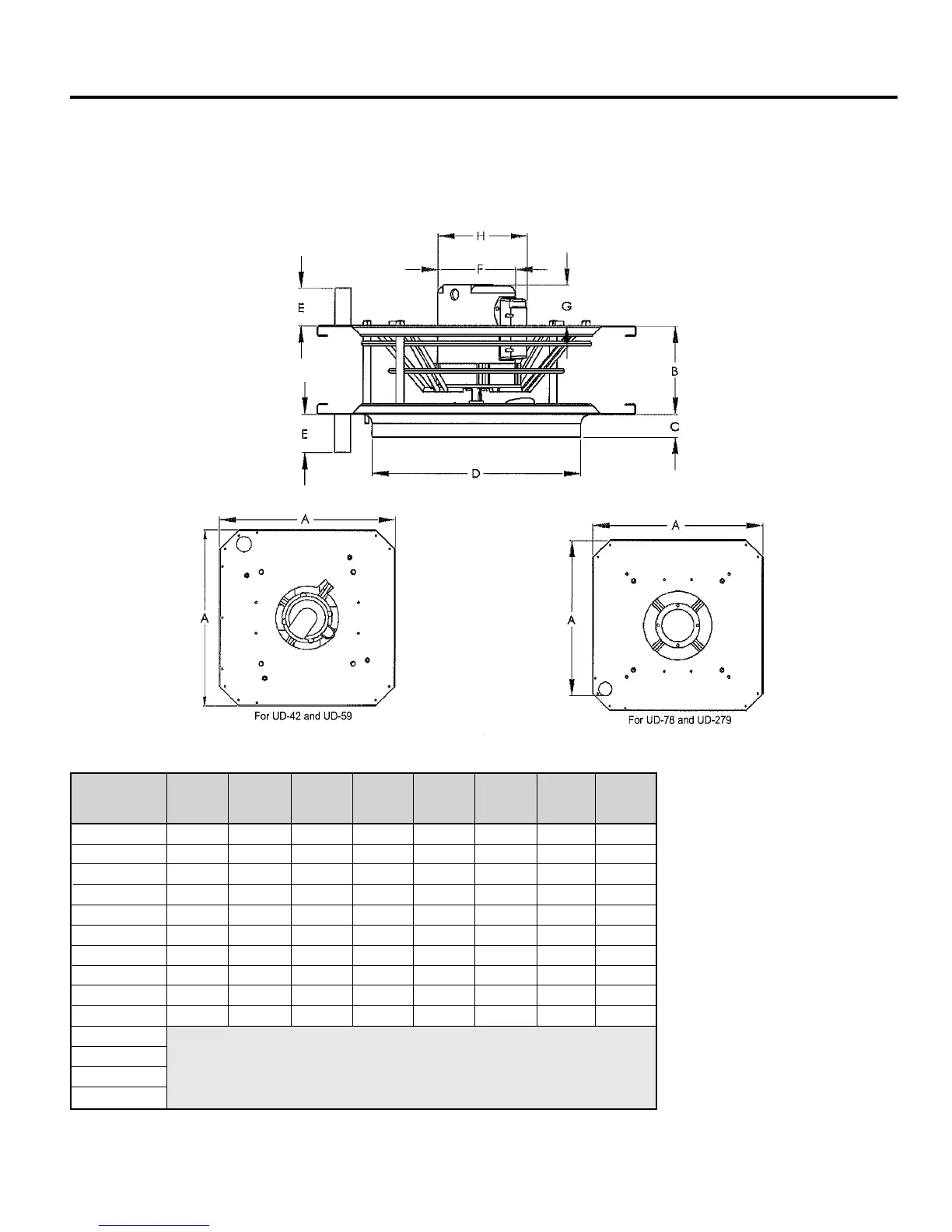
Dimensional Data
Dimensions
23
23
25
25
35
35
30
30
35
35
Table 16. Dimensions – Model UDX
UNIT SIZE
A B
C
D
E
F
G
H
6.375
6.375
6.375
6.375
10.375
10.375
12.375
12.375
12.375
12.375
3.125
3.125
3.125
3.125
3.125
3.125
4
4
4
4
15
15
17
17
18.875
18.875
20.875
20.875
22.875
22.875
2.75
2.75
2.75
2.75
2.75
2.75
2.75
2.75
2.75
2.75
6.54
6.54
6.54
6.54
7.36
7.36
7.36
7.36
7.36
7.36
5.6875
5.6875
6.625
6.625
6.5
6.5
0.125
0.125
0.125
0.125
Not Available
Assembled Explosion Proof Vertical Air Delivery Model UDX
Note:
All dimensions in inches.

Related product manuals