EasyManua.ls Logo

Daitsu DS-9KIDT - Mounting Plate Installation; Wall Drilling and Piping Preparation; Indoor Unit Electrical Connections

Daitsu DS-9KIDT
26 pages
Print Icon
To Next Page IconTo Next Page
To Next Page IconTo Next Page
To Previous Page IconTo Previous Page
To Previous Page IconTo Previous Page
Loading...
Air Conditioner Service Manual

z Install the indoor unit at a height of at least 2.5m
from the ground.
To install, proceed as follows:
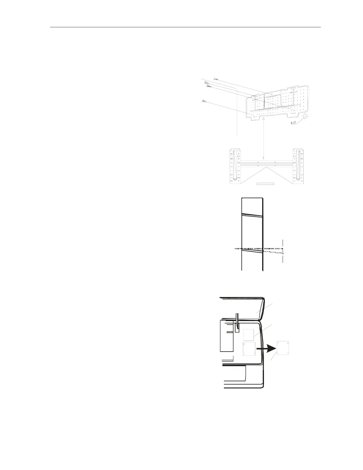
9.2.1 Installation of the mounting plate.
1) By using a level, put the mounting plate in a
perfect square position vertically and horizontally.
2) Drill 32mm deep holes in the wall to fix the plate.
3) Insert the plastic anchors into the hole.
4) Fix the mounting plate by using the provided
tapping screws.
5) Check that the mounting plate is correctly fixed.
Note: The shape of the mounting plate may be
different from the one above, but installation
method is similar.
9.2.2 Drilling a hole in the wall for the piping
1) Decide where to drill the hole in the wall for the
piping (if necessary) according to the position of
the mounting plate
2) Install a flexible flange through the hole in the
wall to keep the latter intact and clean.
The hole must slope downwards towards the
exterior.
Note: Keep the drain pipe down towards the
direction of the wall hole, otherwise leakage may
occur.
9.2.3 Electrical connections---Indoor unit
1).Lift the front panel.
2).Take off the cover as indicated in the picture
(by removing a screw or by breaking the hooks).
3).For the electrical connections, see the circuit
diagram on the right part of the unit under the
front panel.
4).Connect the cable wires to the screw terminals
by following the numbering, Use wire size
suitable to the electric power input (see name
plate on the unit) and according to all current
national safety code requirements.
5).The cable connecting the outdoor and indoor
units must be suitable for outdoor use.
6).The plug must be accessible also after the
appliance has been installed so that it can be
pulled out if necessary.
Front panel
Terminal block cover
Wiring diagram
5mm
Indoors
Out doors

Related product manuals