EasyManua.ls Logo

Danfoss VLT 5000 Series - Page 76

Danfoss VLT 5000 Series
143 pages
To Next Page IconTo Next Page
To Next Page IconTo Next Page
To Previous Page IconTo Previous Page
To Previous Page IconTo Previous Page
Loading...
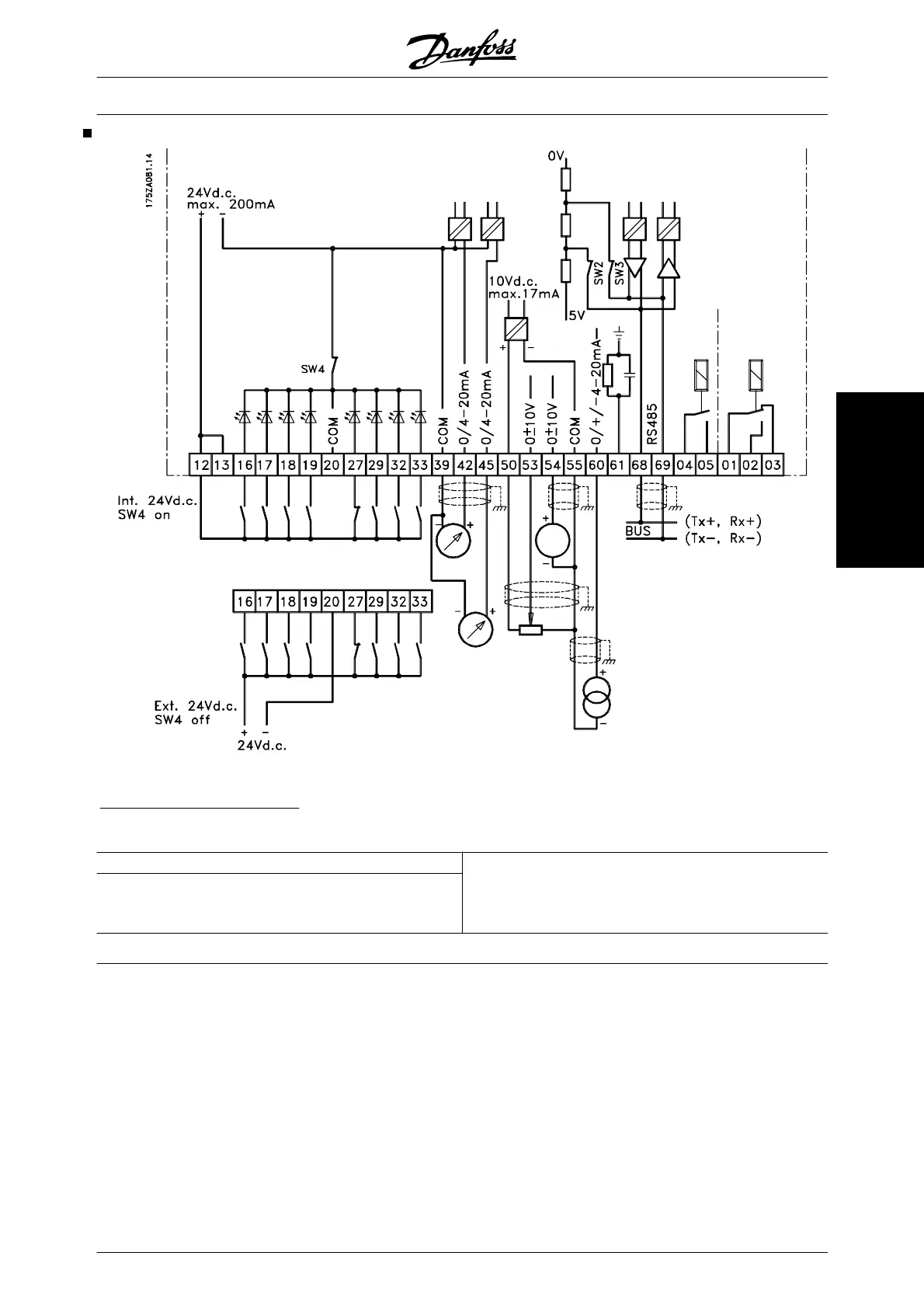
Electrical installation - Signal Input/Output
Conversion of analogue inputs
Current input signal to voltage input
0-20 mA 0-10 V
Connect 510 ohms resistor between input terminal 53
and 55 and adjust minimum and maximum values in pa-
rameters 309, and 310 or 54 and 55 and adjust minimum
and maximum values in parameters 312 and 313.
4-20 mA 2-10 V
VLT
®
5000 Design Guide
MG.52.B2.02 - VLT
®
is a registered Danfoss trademark 75
Electrical installation

Table of Contents

Other manuals for Danfoss VLT 5000 Series

Related product manuals