EasyManua.ls Logo

Dantherm Cooling PS023022Z - Page 12

Default Icon
14 pages
Print Icon
To Next Page IconTo Next Page
To Next Page IconTo Next Page
To Previous Page IconTo Previous Page
To Previous Page IconTo Previous Page
Loading...
Page 12 of 14
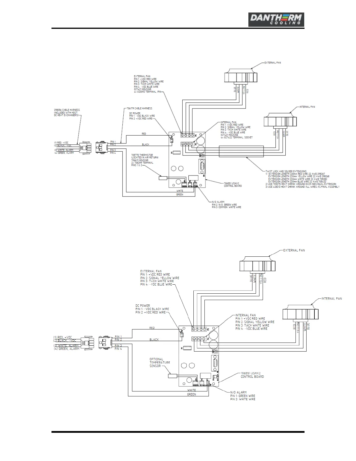
8.1.3. DC Voltage Diagram: PS0XX0 (11/17/22/35/45/55) Y/Z with HX2 Speed Control
(up to batch date 130601)
8.1.4. DC Voltage Diagram: PS0XX0 (11/17/22/35/45/55) Y/Z with HX2 Speed Control
(Batch date 130601 and newer)
Dantherm Cooling , Inc. Heat Exchanger Operating & Maintenance Manual
HexFlow Pinnacle Series Product Information Manual

Related product manuals