EasyManua.ls Logo

Dantherm Cooling PS035035B - Cut Out and Mounting Diagrams; PS018 XXX-XX Series Cut Out and Mounting

Default Icon
14 pages
Print Icon
To Next Page IconTo Next Page
To Next Page IconTo Next Page
To Previous Page IconTo Previous Page
To Previous Page IconTo Previous Page
Loading...
Page 6 of 14
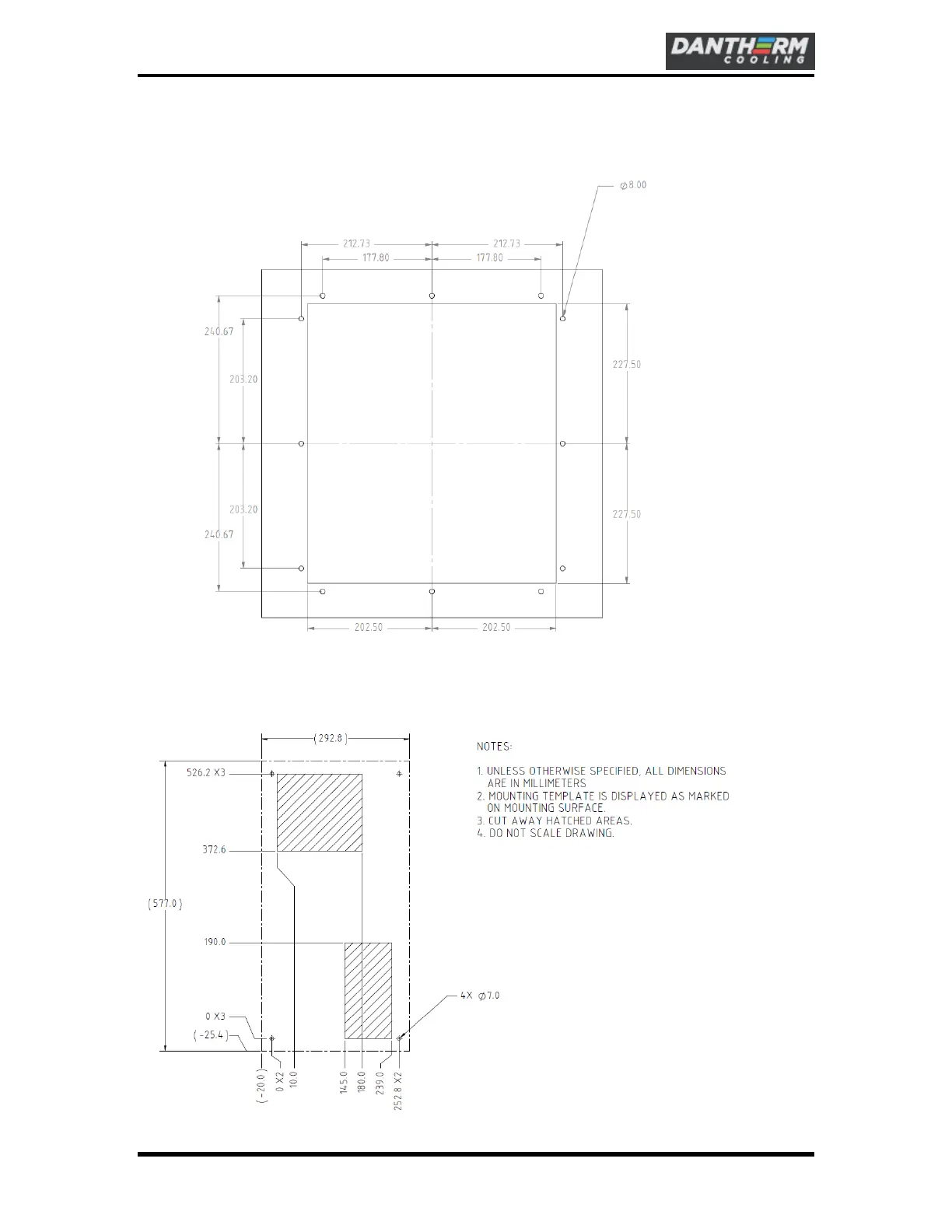
5.2. Cut Out and Mounting Diagrams
5.2.1. PS018XXX-XX series
5.2.2. Cut Out & Mounting Information for older PS023011/017/022-XX
series (prior to 2008)
Dantherm Cooling , Inc. Heat Exchanger Operating & Maintenance Manual
HexFlow Pinnacle Series Product Information Manual

Related product manuals