EasyManua.ls Logo

Dantherm Cooling PS035035B - PS035 XXX-XX Series Cut Out and Mounting; PS060 XXX-XX Series Cut Out and Mounting

Default Icon
14 pages
Print Icon
To Next Page IconTo Next Page
To Next Page IconTo Next Page
To Previous Page IconTo Previous Page
To Previous Page IconTo Previous Page
Loading...
Page 8 of 14
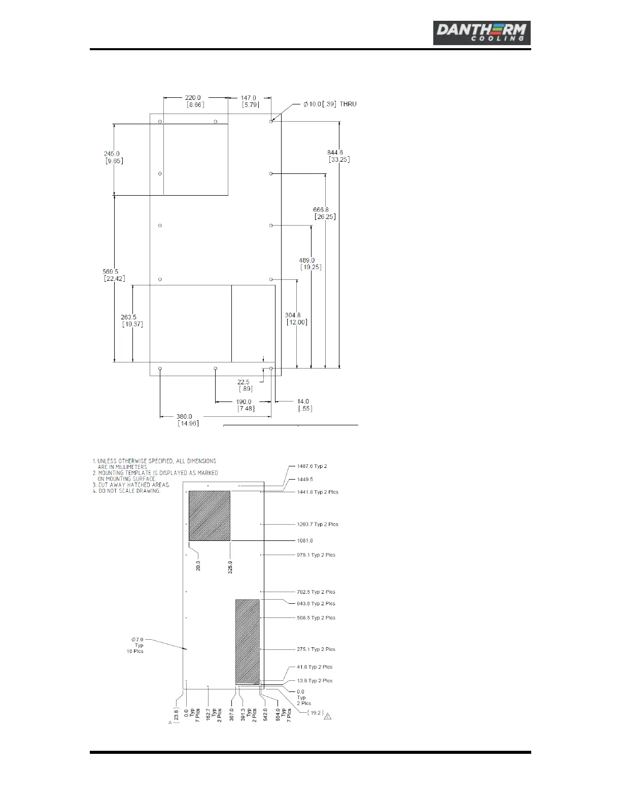
5.2.5. Cut Out & Mounting Information PS035XXX-XX series
5.2.6. Cut Out & Mounting Information PS060XXX-XX series
Dantherm Cooling , Inc. Heat Exchanger Operating & Maintenance Manual
HexFlow Pinnacle Series Product Information Manual

Related product manuals