EasyManua.ls Logo

Delfield T14D - Page 30

Delfield T14D
44 pages
Print Icon
To Next Page IconTo Next Page
To Next Page IconTo Next Page
To Previous Page IconTo Previous Page
To Previous Page IconTo Previous Page
Loading...
Delfield
®
T40
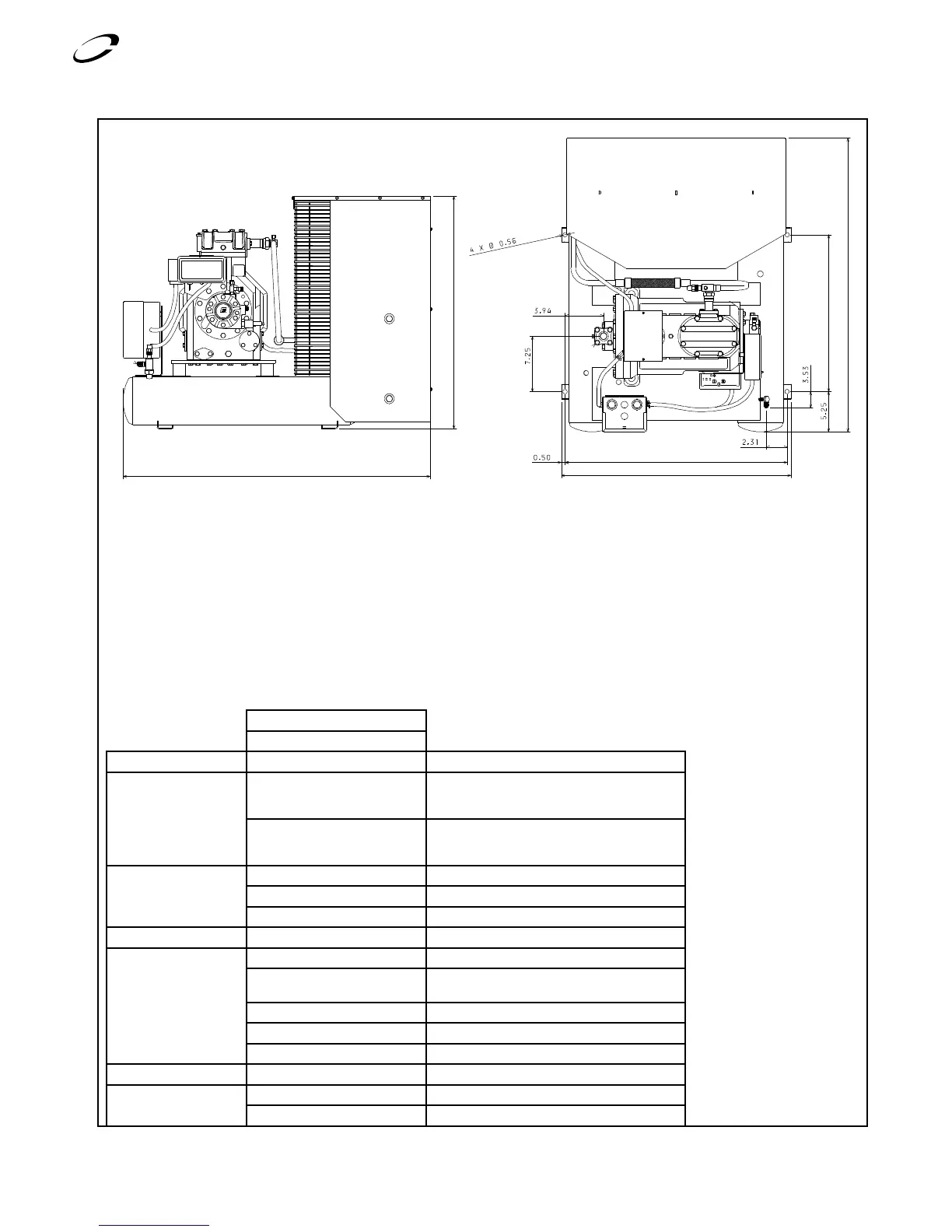
Deleld Model#: T40CU
Refrigerant 404A
Compressor and wiring
Compressor and Capacity
6 HP Compressor
24,150 BTUH @ -32˚F, 90 amb, 102.2 Cond: 46,740BTUH
@ -5˚, 90 amb110.3 Cond.
Condensing Unit Wiring
208/230V/60Hz/3Ph
Max Fuse Size: 60A
Max Circuit Ampacity:42.3A
Control System
High Pressure Switch Set Point: 450 psig, 380 psig re-set
Low pressure switch Set Point: 25psig, Range = 15in to 100psig
Oil Pressure Dierential Switch Sensotronic Oil Pressure Switch
Compressor Reliability Crankcase Heater 65 watts
Flow Control
Condenser Capacity Control Head Pressure Control Set at 84˚F, 185psig
Reciever Capacity
55.4lbs. @ 90% liquid refrigerant ll (37.5lbs. max
refrigerant charge)
Accumulator 500 Cubic Inch Capacity
Oil Separator Yes
Oil Filter Yes
Optional Outdoor Hood Deleld Model Number: CUHOOD
Shipping Weight
Condensing Unit 600 Lbs.
Outdoor Hood 100 Lbs.
T40: Blast Chiller/Shock Freezer Remote Condensing Unit
36.00
35.00
48.00
27.00
30.00
48.00
36.00
35.00
48.00
27.00
30.00
48.00
Ambient Operating Limits: -20˚F to 120˚F
Note: The Deleld Blast Chiller/Shock Freezer is wired independently of the remote
condensing unit. No interconnecting wiring is required between the blast chiller
and the condensing unit. All condensing units have units have crankcase heaters.
Condensing unit control systems are provided wired from the factory. Field
Connection is made by connecting supply power to the compressor contactor.
Outdoor condensing unit applications require the use of an optional UL listed hood,
deleld P/N CUHOOD, for protection from the elements. Water cooled units are not
recommended for outdoor installation.
Interconnecting piping, curbs or other mounting methods and refrigerant are not
included. Installation must be made by a qualied refrigeration technician. Piping runs
of greater than 100 feet require consultaion with the factory.

Other manuals for Delfield T14D

Related product manuals