EasyManua.ls Logo

Delta DVP-SLIM - Page 8

Delta DVP-SLIM
15 pages
Print Icon
To Next Page IconTo Next Page
To Next Page IconTo Next Page
To Previous Page IconTo Previous Page
To Previous Page IconTo Previous Page
Loading...
注意事項
請在使用之前,詳細閱讀本使用說明書。
本機為開放型 (OPEN TYPE) 機殼因此使用者使用本機時必須將之安裝於具防防潮及免於電擊/衝擊意外之外
殼配線箱內。另必須具備保護措施(如:特殊之工具或鑰匙才可打開)防止非維護人員操作或意外衝擊本體,造成危險
及損壞。
交流輸入電源不可連接於直流類型之輸入/出信號端否則可能造成嚴重的損壞因此請在上電之前再次確認電源配線
請勿在上電時觸摸任何端子。
產品簡介
謝謝您採用台達 DVP-SLIM 系列可程式控制器。DVP-SLIM 系列 6 ~ 16 點擴充,含主機最大數位輸入輸出擴充分別可達
256 點。另備特殊模組(AD/DA/PT/TC/XA/PU)擴充功能,最多可擴 8 台特殊模組。
產品外觀及各部介紹
EXTENSION
PORT
60
8
8
9
10
44
7
5 6
25.20
3
.
0
0
9
0
.
0
0
3
.
0
0
3
1
2
3
POWER
D
V
P
-
L.V
3
.
0
0
9
0
.
0
0
65
8
60
3
.
0
0
25.20
2
7
3
3
1
44
POWER
L.V
EXTENSION
PORT
9
10
8
D
V
P
-
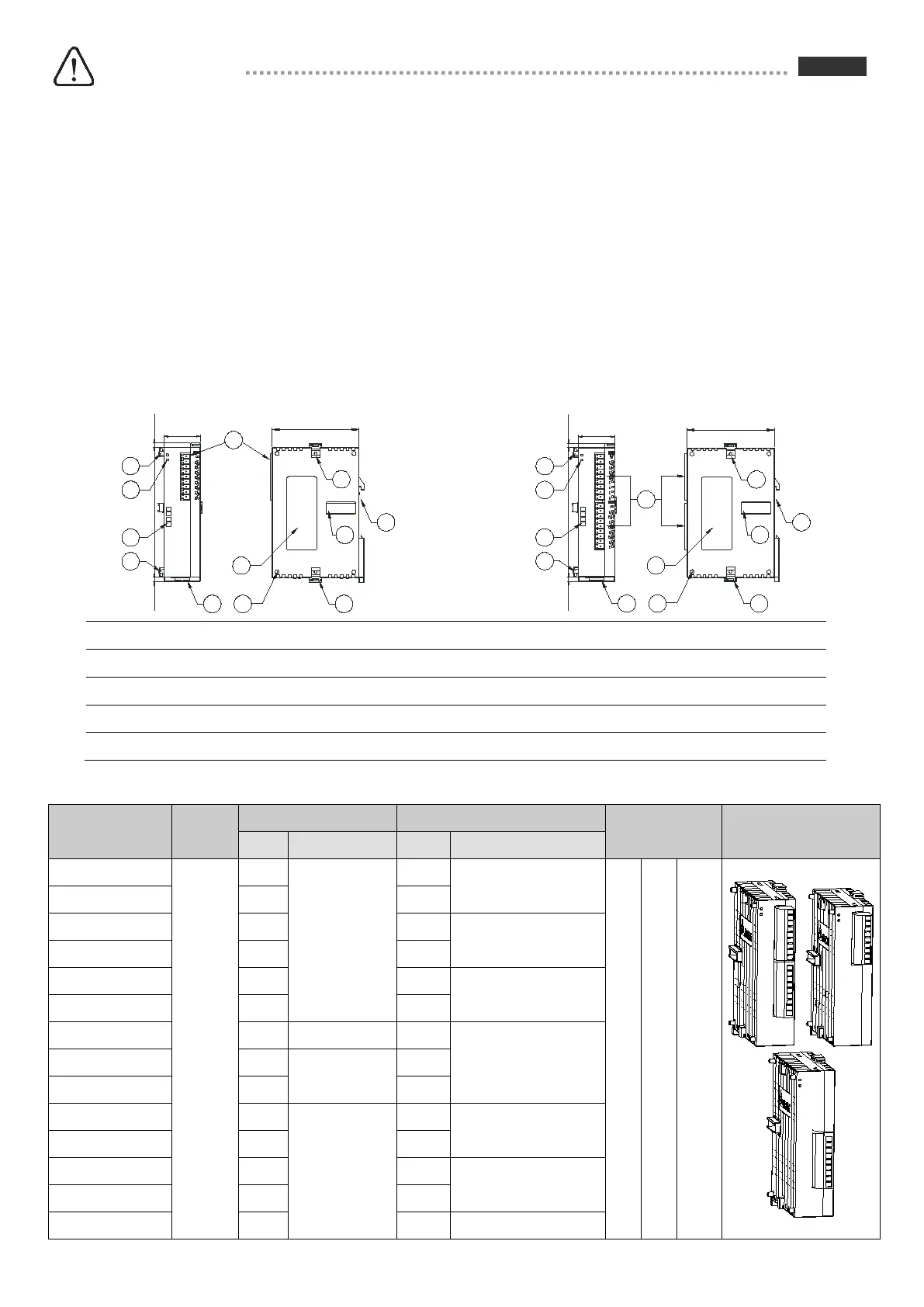
電源、低電壓指示燈
擴充機定位孔
機種名稱
銘牌
擴充機固定扣
擴充機固定扣
輸出入端子
DIN
軌槽
(35mm)
DIN
軌固定扣
擴充機連接口
機種型號
機種
電源
輸入單元
輸出單元
尺寸
(mm)
外形參考
點數
形式
點數
DVP08SP11R
24VDC
4
DC Type
Sink/Source
4
繼電器
25.2
90 60
DVP16SP11R 8 8
DVP08SP11T 4 4
電晶體(Sink)
DVP16SP11T 8 8
DVP08SP11TS 4 4
電晶體(Source)
DVP16SP11TS 8 8
DVP08SM10N 8 100 ~ 120VAC
0
DVP08SM11N 8
DC Type
Sink/Source
0
DVP16SM11N 16 0
DVP06SN11R 0
6
繼電器
DVP08SN11R 0 8
DVP08SN11T 0 8
電晶體(Sink)
DVP16SN11T 0 16
DVP08SN11TS 0 8
電晶體(Source)
繁體中文

Related product manuals