EasyManua.ls Logo

Delta Frameless Sliding - Securing Wall Jambs; Vertical Alignment and Temporary Securing; Ensuring Consistent Jamb Spacing

Delta Frameless Sliding
46 pages
Print Icon
To Next Page IconTo Next Page
To Next Page IconTo Next Page
To Previous Page IconTo Previous Page
To Previous Page IconTo Previous Page
Loading...
12
IMPORTANT:
Before proceeding, make sure both wall
jambs (G) are positioned the same distance from the front of
the sill.
A = 1/4" from front edge of the enclosure or immediately
beyond the radius of the curved wall.
IMPORTANTE: A
ntes de continuar, asegúrese de que
ambas jambas de pared (G) están a la misma distancia de la
parte delantera del alféizar.
A = 1/4" (0.6 cm) desde el borde frontal del cierre o
inmediatamente fuera del radio de la pared curva.
"A"
"A"
5
G
G
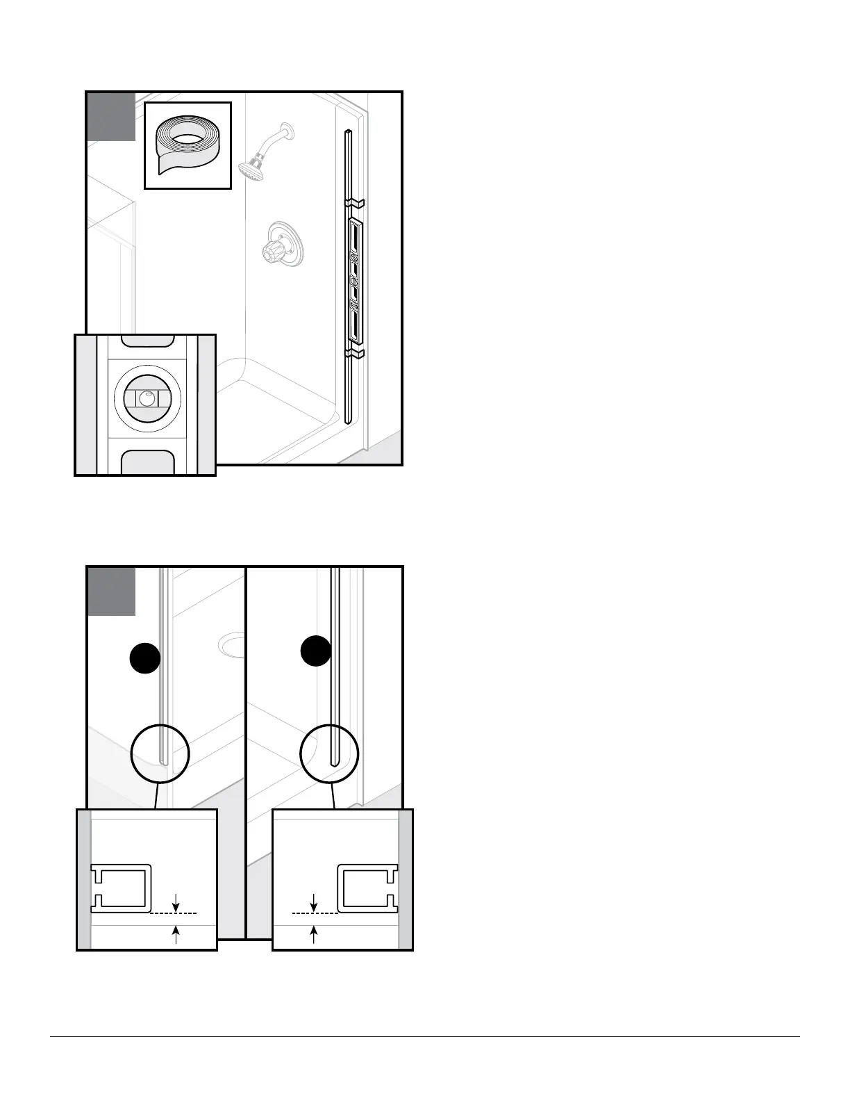
Installing Wall Jamb
Using a level, make sure wall jamb is vertical.
Temporarily tape wall jamb in position. Repeat these steps
for remaining wall jamb.
Instalación de la jamba de pared
Usando un nivel, asegúrese de que la jamba de la pared
esté vertical.
Sujete provisionalmente la jamba de pared con cinta
adhesiva en su posición. Repita estos pasos en el resto de
la jamba de pared.
4

Related product manuals