EasyManua.ls Logo

Delta VFD022CP43B-21 - Page 26

Delta VFD022CP43B-21
868 pages
Print Icon
To Next Page IconTo Next Page
To Next Page IconTo Next Page
To Previous Page IconTo Previous Page
To Previous Page IconTo Previous Page
Loading...
Chapter 1 IntroductionCP2000
1-17
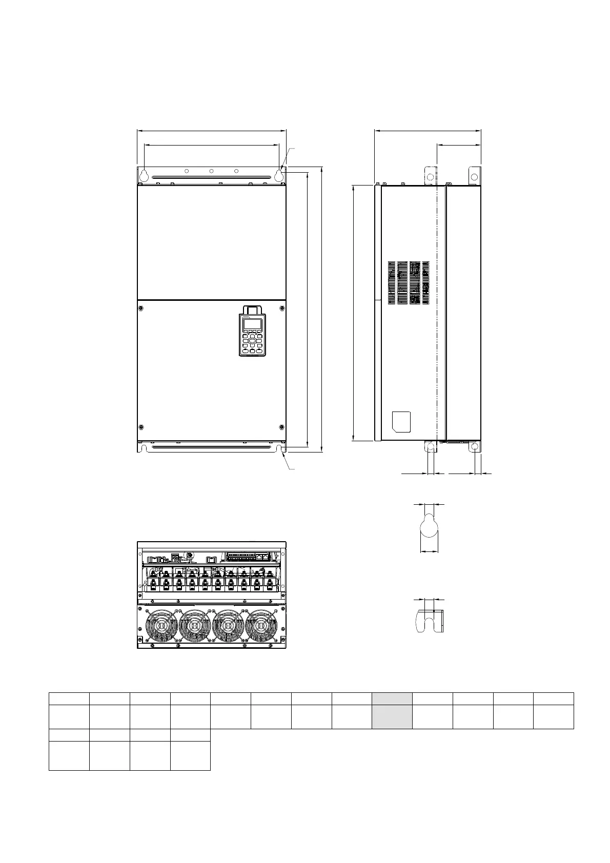
Frame F
F1: VFD1600CP43A-00; VFD1850CP43B-00; VFD1600CP63A-00; VFD2000CP63A-00
H1
H2
S1
S1
W
W1
S2
See Detail A
See Detail B
Detail A (Mounting Hole)
Detail B (Mounting Hole)
D2
D
D1
H3
S3
Figure 1-23
Unit: mm [inch]
Frame W H D W1 H1 H2 H3 D1* D2 S1 S2 S3
F1
420.0
[16.54]
-
300.0
[11.81]
380.0
[14.96]
800.0
[31.50]
770.0
[30.32]
717.0
[28.23]
124.0
[4.88]
18.0
[0.71]
13.0
[0.51]
25.0
[0.98]
18.0
[0.71]
Frame Φ1 Φ2 Φ3
F1 - - -
D1*: Flange mounting
See Detail
A
See Detail B
Detail A
(
Mountin
g
Hole
)
Detail B
Mountin
Hole

Table of Contents

Related product manuals