EasyManua.ls Logo

Delta VFD1A6ME21ANNAA - Page 76

Delta VFD1A6ME21ANNAA
403 pages
To Next Page IconTo Next Page
To Next Page IconTo Next Page
To Previous Page IconTo Previous Page
To Previous Page IconTo Previous Page
Loading...
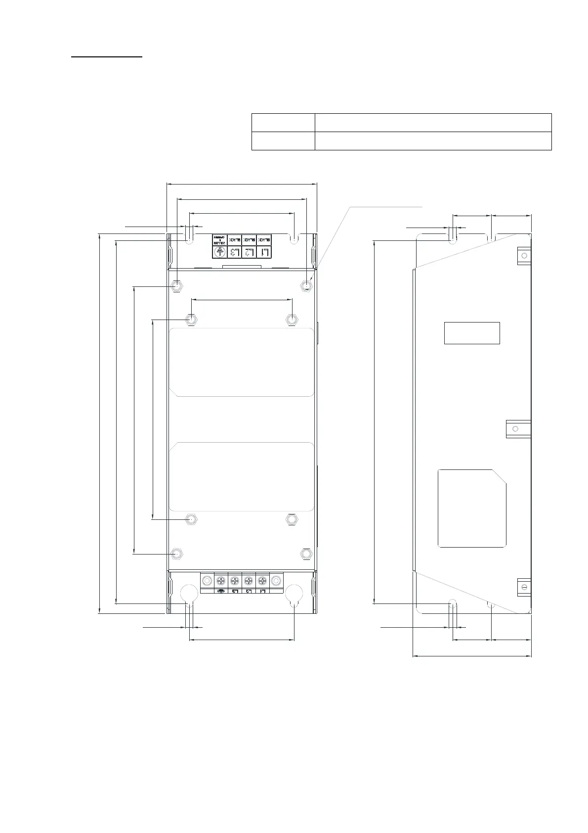
Chapter 7 Optional AccessoriesME300
7-29
Frame B filter
EMF27AM21B; EMF24AM23B
EMF33AM23B; EMF12AM43B
EMF23AM43B
Screw Torque
M5 * 4 16–18 kg-cm / [13.9–17.3 lb-in.] / [1.56–1.96 Nm]
Unit: mm [inch]
29.1 [1.14]
86.0 [3.39]
263.0 [10.35]
29.1 [1.14]28.0 [1.10]
5.5 [0.22]
5.5 [0.22]
109.0 [4.29]
275.0 [10.83]
263.0 [10.35]
5.5 [0.22]
76.0 [2.99]
76.0 [2.99]
5.5 [0.22]
28.0 [1.10]
193.8 [7.63]
144.5 [5.69]
94.0 [3.70]
73.0 [2.87]
M5 screw
TORQUE:16-18kgf-cm

Table of Contents

Related product manuals