EasyManua.ls Logo

Delta VFD4A8MS23ANSAA - Page 110

Delta VFD4A8MS23ANSAA
805 pages
Print Icon
To Next Page IconTo Next Page
To Next Page IconTo Next Page
To Previous Page IconTo Previous Page
To Previous Page IconTo Previous Page
Loading...
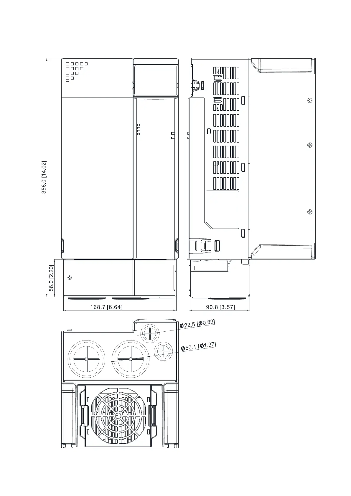
Chapter 7 Optional AccessoriesMS300
101
Frame F
Conduit box model: MKM-CBF
Unit: mm (inch)
Figure 7-55

Table of Contents

Other manuals for Delta VFD4A8MS23ANSAA

Related product manuals