EasyManua.ls Logo

Depaepe HD2000 - Plan de Perçage; Drilling Plan

Depaepe HD2000
15 pages
Print Icon
To Next Page IconTo Next Page
To Next Page IconTo Next Page
To Previous Page IconTo Previous Page
To Previous Page IconTo Previous Page
Loading...
Copyright © 2024 Depaepe NC Page 5 of 15
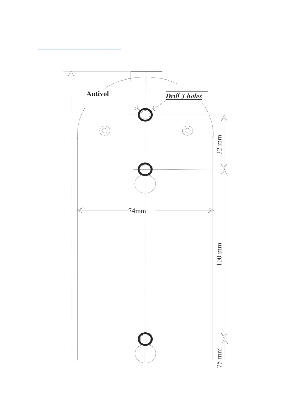
2. Plan de perçage / Drilling plan

Related product manuals