EasyManua.ls Logo

Desa V)368ST - Product Dimensions; Firebox Dimensional Views

Default Icon
16 pages
Print Icon
To Next Page IconTo Next Page
To Next Page IconTo Next Page
To Previous Page IconTo Previous Page
To Previous Page IconTo Previous Page
Loading...
www.desatech.com
55511E 3
SAFETY
Continued

 


or any other appliance.
 
appliance should be located
     
furniture and draperies.
 

the appliance.
    -



doors fully opened or fully closed

   

only. When processed wood fuel

stir the logs while they are burn-

been evaluated for the application
 
warnings and caution markings
on packaging prior to use.

should be alerted to the hazards of
high surface temperatures and to
stay away to avoid burns or cloth-

be carefully supervised when in the

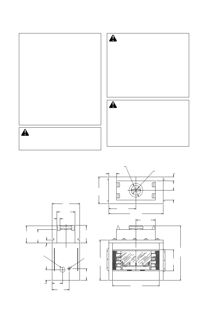
Figure 1 - Dimensions
8" I.D.
LEFT SIDE
VIEW
FRONT VIEW
TOP VIEW
36
1
/
2
"
20
1
/
2
"
54"
24"
21
5
/
16
"
42
5
/
8
"
9
1
/
2
"
19"
4
1
/
2
"
12"
17
3
/
16
"
7"
12"
24"
1 1
1
/
4
"
10
1
/
4
"
6"
37
1
/
2
"
12
3
/
8
"
O.D.
OUTSIDE AIR
GAS LINE
16"
(40.6 cm)
1
1
/
2
"
2
1
/
2
"
15
1
/
2
"
CONDUIT
(61 cm)
(15.2 cm)
(31.4 cm)
(20.3 cm)
(6.4 cm)
(24.1 cm)
(108.3 cm)
(54.1 cm)
(39.4 cm)
(137.2 cm)
(52.1 cm)
(92.7cm)
(95.3 cm)
(61 cm)
(48.3 cm)
(11.4 cm)
(28.6 cm)
(30.5 cm)
(17.8 cm)
(26 cm)
(3.8 cm)
(30.4 cm)
(43.66 cm)
PRODUCT DIMENSIONS

Related product manuals