EasyManua.ls Logo

Desa V)368ST - Chimney Height and Roof Rules

Default Icon
16 pages
Print Icon
To Next Page IconTo Next Page
To Next Page IconTo Next Page
To Previous Page IconTo Previous Page
To Previous Page IconTo Previous Page
Loading...
www.desatech.com
55511E 9
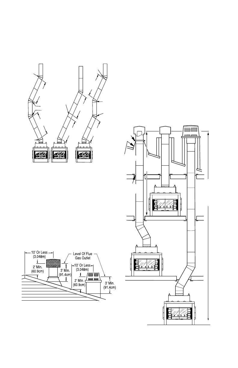
TYPICAL OFFSET INSTALLATIONS
OFFSET
ELBOW
OFFSET
ELBOW
RETURN
ELBOW
OFFSET
ELBOW
RETURN
ELBOW
RETURN
ELBOW
RETURN
ELBOW
CEILING
SUPPORT
PIPE
V12S-8DM
6' MAX
(15.2cm)
6' MAX
(15.2cm)
6' MAX
(15.2cm)
6' MAX
(15.2cm)
6' MAX
(15.2cm)
6' MAX
(15.2cm)
MINIMUM
HEIGHT
15 FT.
(4.5m)
MAXIMUM
HEIGHT
CHASE
TERMINATION
40 FT.
(12m)
VENTING INSTALLATION
Continued
Figure 19 - Typical Offset Installations
Figure 20 - 10 Foot Rule
Figure 21 - Maximum Chimney Height
Storm
Collar
Flashing
Firestop
Spacer
VRTL-8DM VRTL-8DM VETL-8DM

All chimney terminations must extend a mini-
mum of 3 feet above the highest point where it
passes through the roof and must be at least 2
feet above roof with a 10 foot horizontal span
(see Figure 20).
IMPORTANT: If an exposed portion of chim-
ney is greater than 4 feet above the roof line,
use support wires to keep chimney secure.
Support wires may be attached to outer pipe
of chimney with screws, if screws do not
penetrate inner ue pipe.

HEIGHT
The minimum height of the chimney (mea-
sured from the base of the replace to the ue
gas outlet-end of pipe) is 16 feet for a straight
is 6 feet of angled run. A maximum of two 6
feet angled run sections per chimney system
(see Figure 19).
run, 16 feet minimum for a run with 1 elbow set
and 25 feet minimum for a run with 2 elbow
sets. (A set consists of one starter elbow and
one return elbow.)
Uncommon circumstances such as neigh-
boring hills, tall trees, or strong wind areas
can cause down drafts in chimney system.
In such cases, going beyond the minimum
recommended height would be preferable to
provide a better draw.
The replace height approved for any chimney
run with this replace system is 40 feet mea-
sured from bottom of rebox to ue outlet-end
of pipe (see Figure 21).

Related product manuals