EasyManua.ls Logo

Devair PROdry - Models 100, 125 Dimensions

Devair PROdry
16 pages
Print Icon
To Next Page IconTo Next Page
To Next Page IconTo Next Page
To Previous Page IconTo Previous Page
To Previous Page IconTo Previous Page
Loading...
12
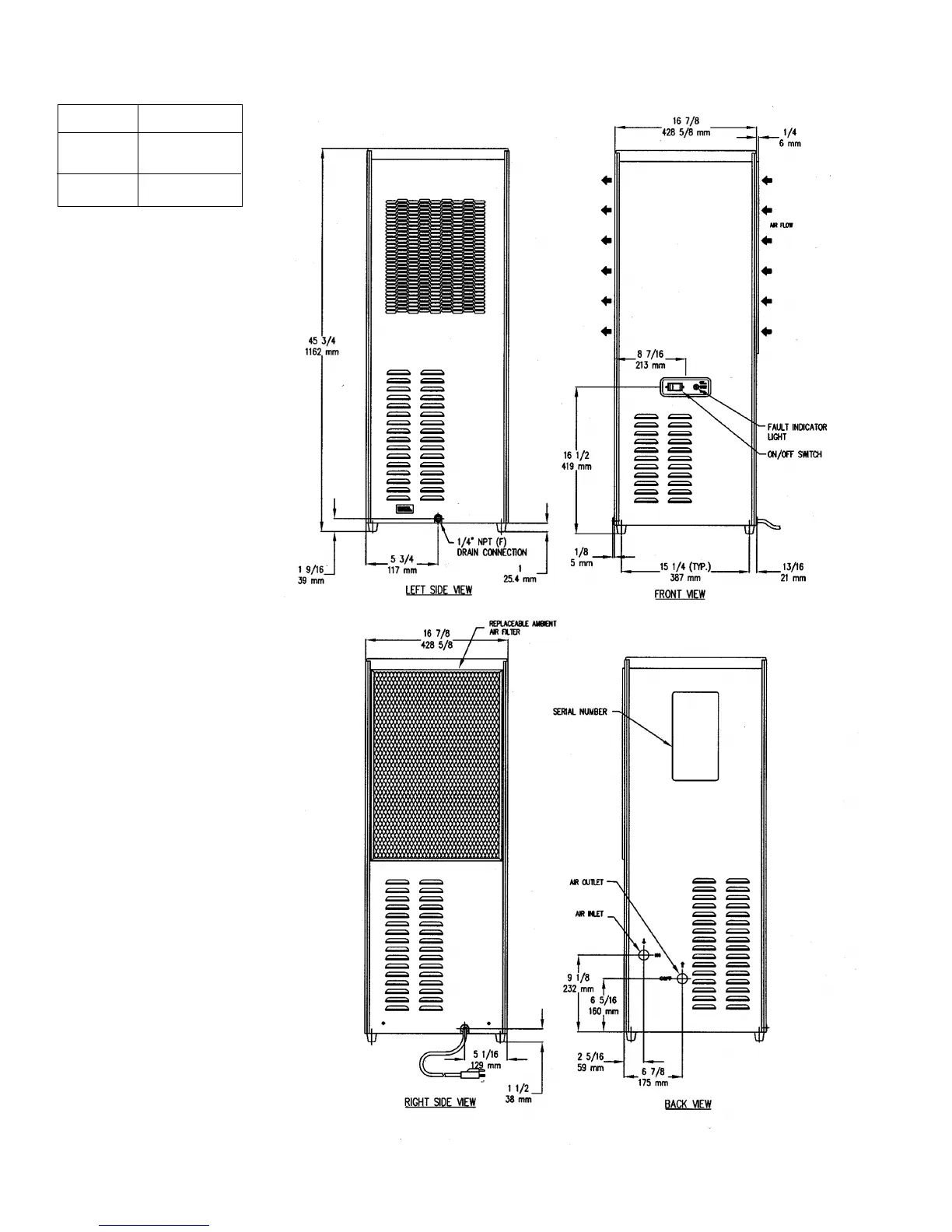
DIMENSIONS AND WEIGHTS
Models 100 and 125
Model Weight
100 187 lbs (85 kg)
125 189 lbs (86 kg)
1"
1"