EasyManua.ls Logo

deville C07910-A - Page 49

deville C07910-A
Print Icon
To Next Page IconTo Next Page
To Next Page IconTo Next Page
To Previous Page IconTo Previous Page
To Previous Page IconTo Previous Page
Loading...
Fig. 3
Fig. 5
Pente < 15°
Slope < 15°
Pendenza < 15°
Pendiente < 1
Inclinado < 15°
40 cm mini
Fig. 4
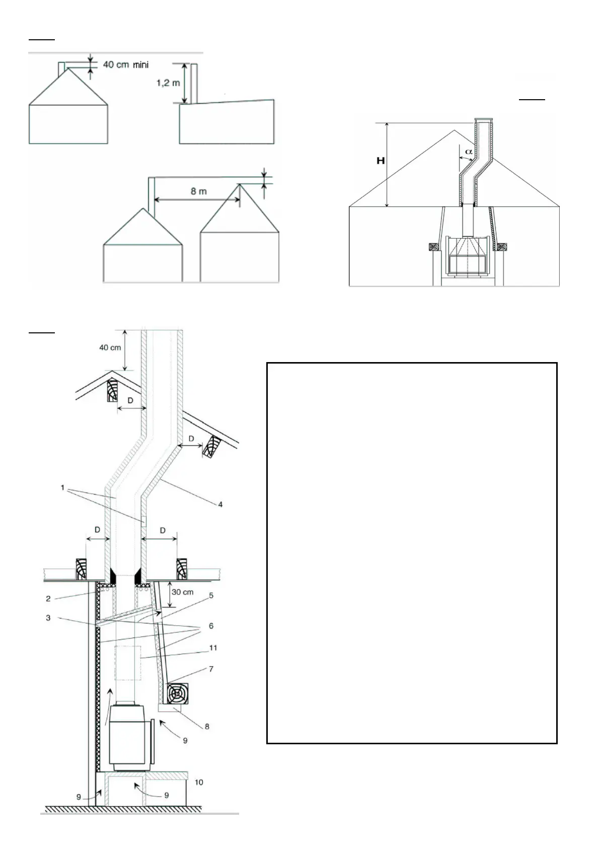
1 -
Tubage éventuel avec évent lorsque le conduit existant
n’est pas compatible.
2 – Hotte de décompression
: 2 orifices de ventilation latéraux
(un en haut et l’autre en bas).
3 - Déflecteur pour guider l’air de convection.
4 -
Conduit de fumées en boisseaux ou en conduit métallique
isolé.
5 - Grille de diffusion d’air chaud (500 cm² minimum).
6 - Isolation (laine de roche).
7 - Hotte, en protection de poutre.
8 - Frise sous poutre, en brique ou béton réfractaire.
9 - Entrée d’air de convection.
Circuit de convection :
- Veiller à ce que l’air de convection puisse ent
rer librement
sous l’appareil sur toute la périphérie, circuler autour du foyer
(sur les côtés et à l’arrière) et s’évacuer par les bouches de
diffusion de la hotte (500 cm² minimum).
Une bonne circulation de l’air de convection permet un
échange de chale
ur optimum avec les parois du foyer sans
surchauffe locale et une bonne ventilation de la hotte.
10 -
Socle (ou bûcher) bien de niveau et ventilé sur sol stable
et renforcé.
11 -
Trappe de visite (500 x 350 mm) pour accès au conduit
de raccordement, au mo
dérateur de tirage, aux prises de
dépression, etc.
D - Distance de sécurité :
-
16 cm mini à partir de la paroi intérieure du conduit (ne pas
isoler la partie non combustible autour du conduit à la
traversée du plafond).
F
α < 20° si H < 5 m
20° < α < 45° si H > 5 m
49

Table of Contents