EasyManua.ls Logo

DeWalt P35s - Page 40

DeWalt P35s
44 pages
Print Icon
To Next Page IconTo Next Page
To Next Page IconTo Next Page
To Previous Page IconTo Previous Page
To Previous Page IconTo Previous Page
Loading...
P35s
FR
40
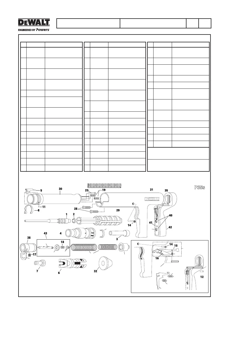
LISTE DES PIÈCES DE RECHANGE DU P35s
23
39
27
22
21
24
24
37
20
9
26
36
33
LEVER
GUIDE 13
KIT
33
# DESCRIPTION
1 52200-PWR Piston avec rondelle de
rétention 21/S DF – standard
2 52106-PWR Rondelle de rétention
du piston
3 52204-PWR Guide 21/F3-1
pleine grandeur
4 52206-PWR Embase 21/SI
pleine grandeur
5 52208-PWR Butée de piston
6 52210-PWR Embase 21/S2 à
accès limité
7 52212-PWR Guide 21/F-2-1 pour
accès limité
8 52214-PWR Ressort annulaire
9 52118-PWR Déclencheur
10 52120-PWR Clip de retenue
11 52122-PWR Bille annulaire en acier
12 52124-PWR Levier du déclencheur
13 52126-PWR Trousse du guide de levier
14 52128-PWR Tige filetée
15 52130-PWR Levier d’avancement
# DESCRIPTION
16 52132-PWR Guide du levier
d’avancement
17 52134-PWR Ressort de la
gâchette
18 52138-PWR Ressort de rappel du
percuteur
19 52140-PWR Bille et ressort de
la bande de pression
20 52142-PWR Ressort du levier
d’avancement
21 52144-PWR Trousse de ressort
arrière
22 52146-PWR Gâchette
23 52148-PWR Percuteur
24 52150-PWR Embout
25 52152-PWR Pièce de pression
26 52154-PWR Ressort de compression
27 52156-PWR Écrou du percuteur
28 52158-PWR Vis à tête Allen (2)
29 52216-PWR Guide du piston
30 52218-PWR Chambre à piston
# DESCRIPTION
31 52220-PWR Ressort de rappel
de la gâchette
32 52222-PWR Boîtier
33 52168-PWR Assemblage de la
bande de support
34 52170-PWR Levier de déverrouillage
35 52172-PWR Anneau de retenue
36 52174-PWR Ressort de rappel
de la gâchette
37 52176-PWR Axe du levier
d’avancement
39 52180-PWR Dispositif d’arrêt avec
ressort (2)
40 52182-PWR Vis à tête cylindrique (2)
41 52184-PWR Vis Allen pour la poignée
42 52186-PWR Poignée en caoutchouc
43 52181-PWR Assemblage du percuteur
*
* L’assemblage du percuteur comprend les
articles18, 23, 27 et 39
La trousse du guide de levier comprend les
articles14, 15, 16, 20et 39

Related product manuals