EasyManua.ls Logo

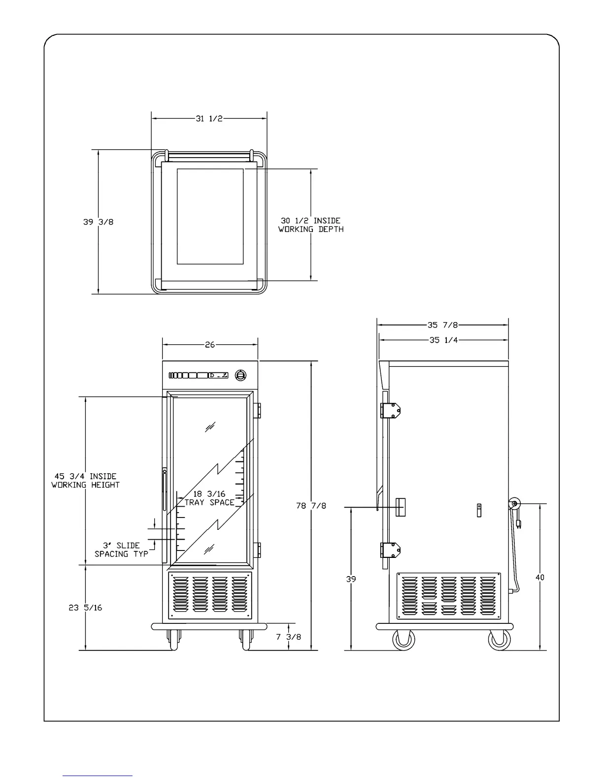
Dinex IRAC15 - Unit Diagram

Dinex IRAC15
12 pages
Print Icon
To Next Page IconTo Next Page
To Next Page IconTo Next Page
To Previous Page IconTo Previous Page
To Previous Page IconTo Previous Page
Loading...
Page 9
Unit Diagram

Related product manuals