EasyManua.ls Logo

Direct-Lift PP8 Plus - Lift Specifications & Floor Plan

Default Icon
34 pages
Print Icon
To Next Page IconTo Next Page
To Next Page IconTo Next Page
To Previous Page IconTo Previous Page
To Previous Page IconTo Previous Page
Loading...
PP8 Plus 3 IN50001 Rev. C 04/30/2008
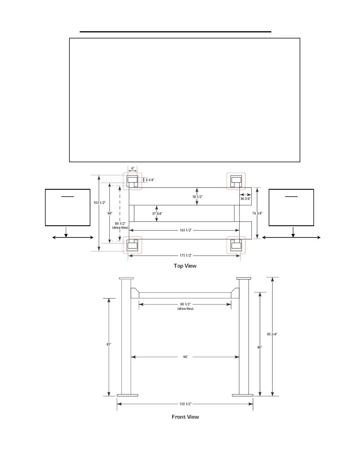
LIFT SPECIFICATIONS & FLOOR PLAN
Capacity 8,000
Lifting Height 86 (7 2)
Overall Length w/ Ramps 207-1/2” (17’ 2 1/2”)
Overall Length w/ no Ramps 175-1/2” (14’ 7 1/2”)
Overall Width 103 1/2” (8’ 7 1/2”)
Approach Ramp Length 36-3/4” (3’ 3/4”)
Runway Width 18-1/2” (1’ 6 1/2”)
Runway Length 165-1/2” (13’ 9 1/2”)
Runway Height 5
Height of Columns 95-3/4” (7’ 11 3/4”)
Clearance between Columns 94” (7’ 10”)
Clearance between Runways 37-3/4”
Outside Runway to Outside Runway 74-3/4” (6’ 2 3/4”)
Clearance Under Runway 81” (6’ 9”)
Motor specs 110VAC, 1HP
Shipping Weight 1,733 LBS
NOTE
WILL NEED AT
LEAST 6’ FT.
CLEARANCE TO
INSTALL
“HANDLE ROD”
NOTE
WILL NEED AT
LEAST 9’ FT.
CLEARANCE TO
INSTALL
“T” ROD”