EasyManua.ls Logo

DIRICKX Garden+ - Page 5

Default Icon
12 pages
Print Icon
To Next Page IconTo Next Page
To Next Page IconTo Next Page
To Previous Page IconTo Previous Page
To Previous Page IconTo Previous Page
Loading...
ED 02 10/2022 5
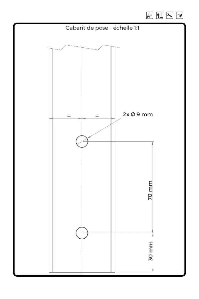
installation template - scale 1:1

Related product manuals