EasyManua.ls Logo

DMN BL250 - Zero Speed Indication

Default Icon
79 pages
Print Icon
To Next Page IconTo Next Page
To Next Page IconTo Next Page
To Previous Page IconTo Previous Page
To Previous Page IconTo Previous Page
Loading...
DMN-WESTINGHOUSE AL-BL Rotary Valves
Code: AL-E.B.01.B 11-2012
50
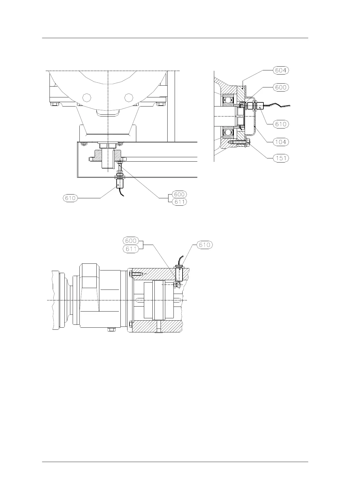
- Zero speed indication
Fig. 3.7.4 Drive side.
Fig. 3.7.5 Non drive side.
Fig. 3.7.6 Direct drive.
104 Bearing cover
151 Bolt
600 Impulssender
604 Cover plate
610 Proximity switch
611 Nut

Table of Contents

Related product manuals