EasyManua.ls Logo

Dometic 59136.331 - 2. PRECAUTIONS; CHOOSING LOCATION FOR THE AIR CONDITIONER;HEAT PUMP

Dometic 59136.331
19 pages
Print Icon
To Next Page IconTo Next Page
To Next Page IconTo Next Page
To Previous Page IconTo Previous Page
To Previous Page IconTo Previous Page
Loading...
6
CCC Ducted Installation Instructions
2. PRECAUTIONS
A. Read Installation and Operating instructions carefully
before attempting to start your air conditioner/heat
pump installation.
B. Dometic Corporation will not be liable for any dam-
ages or injury incurred due to failure in following these
instructions.
C. Installation must comply with the National Electrical
Code and any State or Local Codes or regulations.
D. DO NOT add any devices or accessories to this air
conditioner/heat pump except those specically au-
thorized by Dometic.
E. This equipment must be serviced by qualied per-
sonnel and some states require these people to be
licensed.
3. CHOOSING LOCATION FOR THE
AIR CONDITIONER/HEAT PUMP
This air conditioner is specically designed for installation
on the roof of a recreational vehicle (RV). When determin-
ing your cooling requirements, the following should be
considered:
1. Size of RV.
2. Window area (increases heat gain).
3. Amount of insulation in walls and roof.
4. Geographical location where the RV will be used.
5. Personal comfort level required.
Improper installation may damage equipment,
could endanger life, cause serious injury
and/or property damage.
A. For One Unit Installation:
The air conditioner/heat pump should be mounted
slightly forward of center (front to back) and centered
from side to side.
B. For Two Unit Installations:
Install one air conditioner/heat pump one-third and
one air conditioner/heat pump two-thirds from front of
RV and centered from side to side.
It is preferred that the air conditioner/heat pump be installed
on a relatively at and level roof section measured with
the RV parked on a level surface; however,
1. Up to an 8° slant to either side or front-to-back is
acceptable on 600 and 630 series air condition-
ers/heat pump.
2. Up to a 15° slant to either side or front-to-back is
acceptable on 520, 530, 579, 590, 591 or 595
series air conditioners/heat pump.
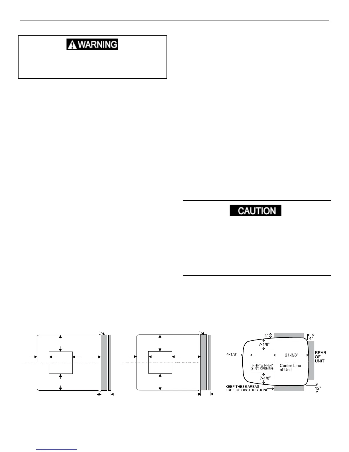
AFTER LOCATION HAS BEEN SELECTED:
a. Check for obstructions in the area where air
conditioner/heat pump will be installed. See
FIG. 1.
b. The roof must be designed to support 130
pounds when the RV is in motion. Normally
200 pound static load design will meet this
requirement.
FIG. 1 AIR CONDITIONER/HEAT PUMP DIMENSIONS (On Top of
Vehicle)
579, 590, 591 & 595 SERIES 600 & 630 SERIES
It is the responsibility of the installer of this
air conditioner/heat pump system to ensure
structural integrity of the RV roof. Never cre-
ate a low spot on the roof where water will
collect. Water standing around the air con-
ditioner/heat pump may leak into the interior
causing damage to the product and the RV.
520 & 530 SERIES
7-3/4"
7-3/4"
18"
7-1/2"
18"
14-1/4"x14-14"
(+1/8) OPENING
REAR
OF
UNIT
KEEP THIS AREA FREE OF OBSTRUCTIONS
KEEP THIS AREA FREE OF OBSTRUCTIONS
7-5/8"
7-5/8"
14-7/8"5-1/4"
18"
REAR
OF
UNIT

Related product manuals