EasyManua.ls Logo

Dometic RM 6270 - Page 27

Dometic RM 6270
28 pages
Print Icon
To Next Page IconTo Next Page
To Next Page IconTo Next Page
To Previous Page IconTo Previous Page
To Previous Page IconTo Previous Page
Loading...
27
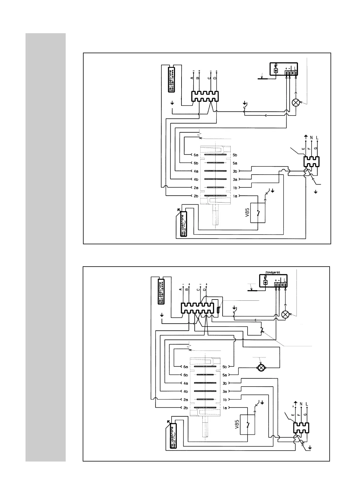
3. Wiring diagram with automatic ignition and no interior light
4. Wiring diagram with automatic ignition and interior light
spark plug
light DC --
re
e
d
c
o
n
ta
c
ts
(s
e
n
s
o
r s
w
itc
h
in
g
)
* resistor (replaced by a bridge for 24V battery voltage)
ignition control lamp
thermo cut-off current
mains connection ~
to casing
heating-
element
AC~
ground
battery connection
12V/24V --
mains connection ~
to casing
thermo cut-off current
heating-elem
ent D
C
-
reigniter
spark plug
to casing
to casing
heating-
element
AC~
from battery
heating-element DC -
Battery connection 12V/24V -
A = Ground heating element DC, white
B = Heating element DC-, red
C = Ground automatic ignition, black
D = Automatic ignition violet
ground
ignition control lamp
to casing
battery connection
12V/24V --
* resistor
to casing
Battery connection 12V/24V -
A = Ground heating element DC, white
B = Heating element DC-, red
C = Ground, automatic ignition black
and interior light,
D = Automatic ignition and violet
interior light
from battery

Related product manuals