EasyManua.ls Logo

Dometic RM2354 - Page 53

Dometic RM2354
54 pages
Print Icon
To Next Page IconTo Next Page
To Next Page IconTo Next Page
To Previous Page IconTo Previous Page
To Previous Page IconTo Previous Page
Loading...
- 53 -
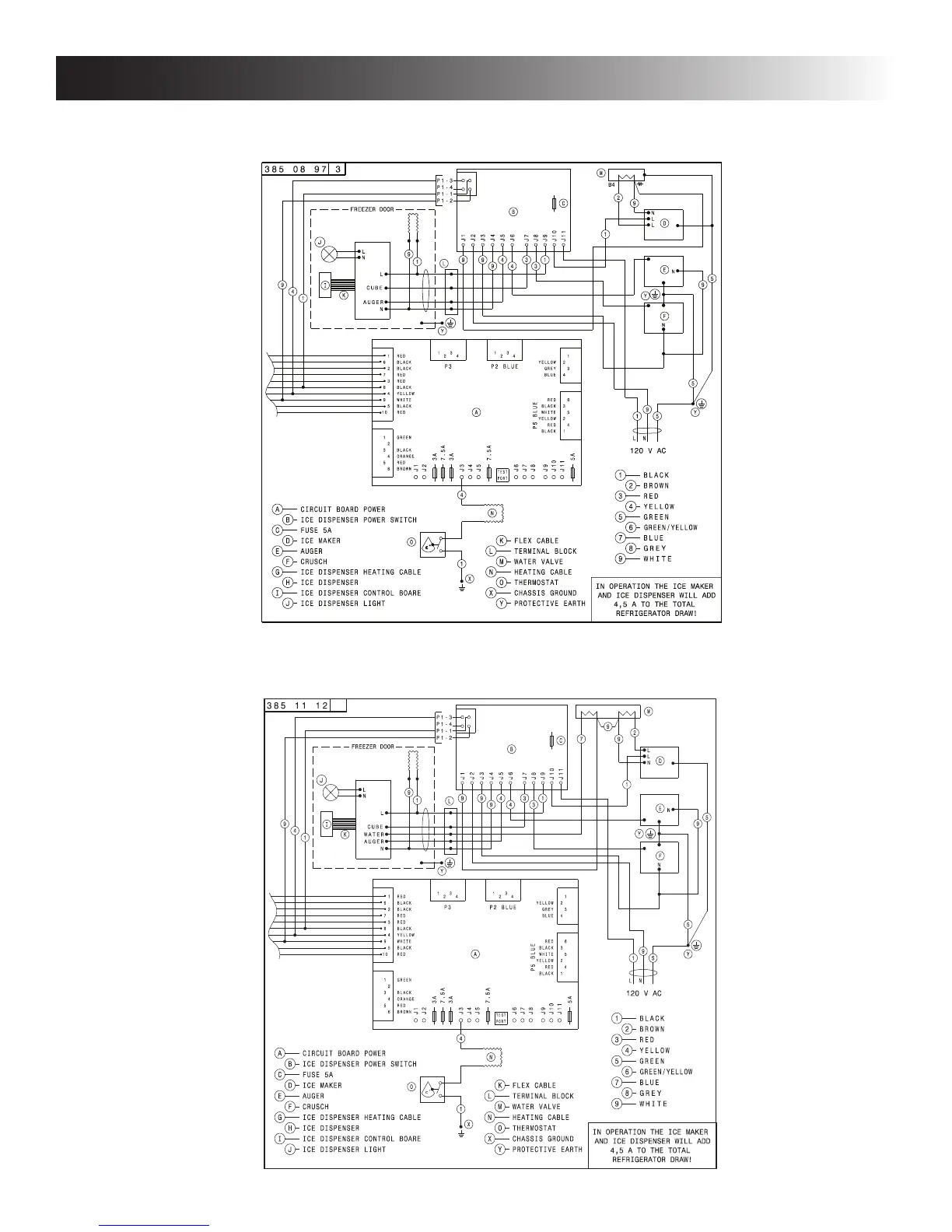
APPENDIX F - WIRING DIAGRAMS
NDA1402 (WITH ICE DISPENSER)
3851324 (2) + 3850897(3)
NDA1402 (WITH ICE AND WATER DISPENSERS)
3851324 (2) + 3851112

Other manuals for Dometic RM2354

Related product manuals