EasyManua.ls Logo

Doosan 7/41 - Overspeed Valve Option

Doosan 7/41
90 pages
Print Icon
To Next Page IconTo Next Page
To Next Page IconTo Next Page
To Previous Page IconTo Previous Page
To Previous Page IconTo Previous Page
Loading...
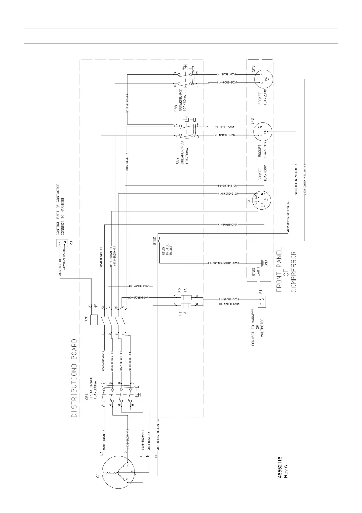
OPTIONS 53
7/26E, 7/31E, 7/41
A.C. Electrical Power Schematic Diagram. 7/26E, 7/31E, 7/41 (400/230V)

Other manuals for Doosan 7/41

Related product manuals